Terratetto unifamiliare 1 m², buono stato, Bukovac - Remete, Zagabria

€ 770.000
5
1 m²
3
No
Terrazzo

Nota

Annuncio aggiornato il 02/02/2026
Descrizione

This description has been translated automatically and may not be accurate

riferimento: RE93070

Zagabria, Maksimir Kostanjevec - Casa bifamiliare su tre piani

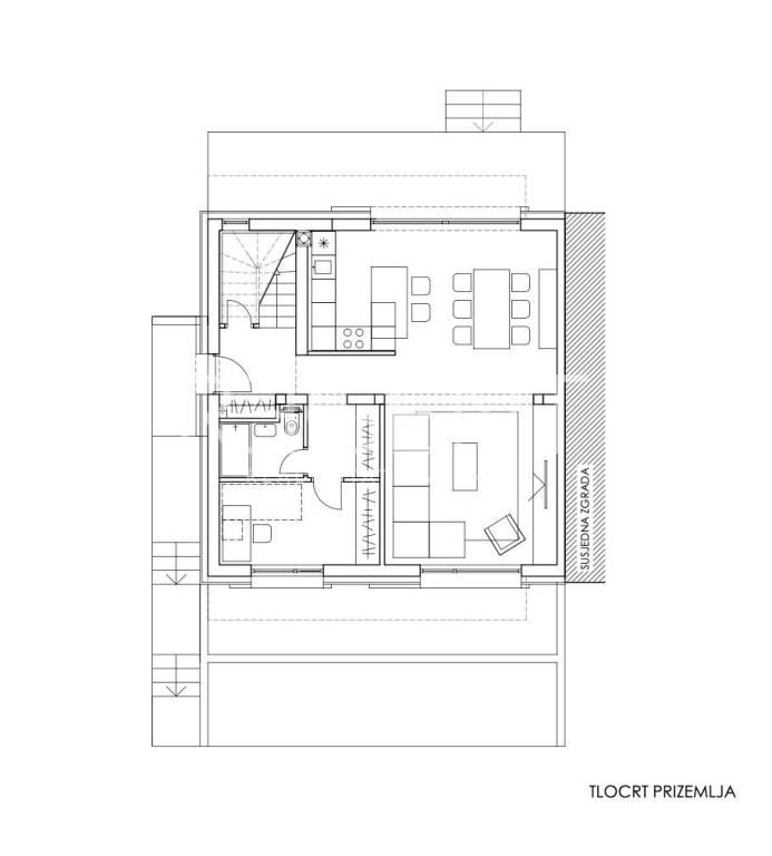
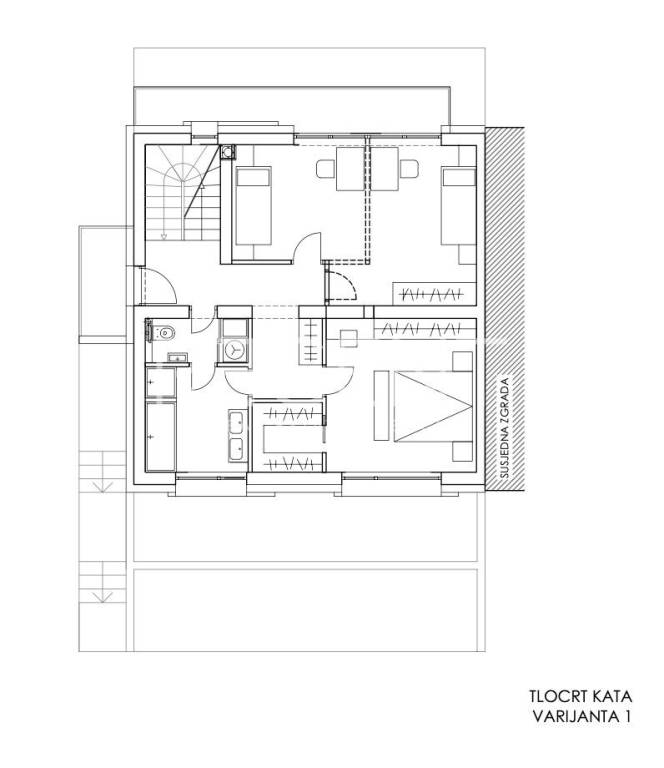
Situata in una zona tranquilla di Remete, in una strada silenziosa e vicino al famoso parco Maksimir, questa casa bifamiliare si estende su tre piani con una superficie totale di 198 m² su un terreno di 380 m². Disposizione per piani: Piano terra: Ingresso, ripostiglio/locale macchine, bagno wc, studio, soggiorno, sala da pranzo, cucina, terrazza, cortile 1° piano:  Corridoio, balcone, lavanderia, bagno, camera con guardaroba, camera con balcone Piano/ mansarda: corridoio, bagno, open space, camera Dotazioni della casa e del giardino: Cucina Dankuchen, elettrodomestici da incasso Bosch: frigorifero, forno, piano cottura a gas, caldaia a condensazione Bosch, radiatori Buderus, rubinetteria Hansgrohe, lavabi Laufen, sanitari Villeroy Boch, climatizzatori Toshiba, interruttori e prese elettriche Vimar, serramenti Rehau, lucernari Velux, parquet a tre strati in rovere, armadi a muro, internet in fibra ottica, sistema di allarme con sensori Bosch,  videosorveglianza del giardino, cancello scorrevole automatico, porta d'ingresso blindata Assa Abloy, giardino illuminato, parcheggio coperto, due ripostigli esterni, cucina esterna, campo da basket 9x6m, pavimentazione esterna Semmelrock – Facciata termica Haering con isolamento di 12cm. L'immobile si trova in una posizione eccellente vicino a tutti i servizi chiave: Negozio: 110 mAsilo nido Bukovac: 170 mFarmacia: 210 mParco Maksimir: 2,5 km (5 minuti in auto)KBC Rebro: 2,7 km (5 minuti in auto)Autobus: 100 m Questa casa è un'ottima opportunità per chi cerca spazio per la famiglia vicino alla natura, ma anche in una posizione ben collegata con tutti i servizi necessari nelle vicinanze. Per ulteriori informazioni non esitate a contattarci!
Caratteristiche
Tipologia
Terratetto unifamiliare
Contratto
Vendita
Piano
Piano terra
Piani edificio
2
Ascensore
No
Superficie
1 m²
Locali
5
Camere da letto
4
Bagni
3
Terrazzo
Box, posti auto
2 posto auto
Riscaldamento
Centralizzato, a radiatori, alimentato a gas
Climatizzazione
Autonomo, freddo/caldo
Informazioni sul prezzo
Prezzo
€ 770.000
Prezzo al m²
770.000 €/m²
Efficienza energetica
  • Anno di costruzione

    2017
  • Stato

    Buono / Abitabile
  • Riscaldamento

    Centralizzato, a radiatori, alimentato a gas
  • Climatizzatore

    Autonomo, freddo/caldo
Planimetria
Scopri ogni angolo dell'immobile
+11
Opzioni aggiuntive

Contatta l'inserzionista

Oppure