Terratetto unifamiliare 250 m², Luka, Parenzo

€ 1.350.000
4
250 m²
3+
No

Nota

Annuncio aggiornato il 22/04/2026
Descrizione

This description has been translated automatically and may not be accurate

riferimento: 250

Villa moderna in una posizione unica, vista mare

Posizione della casa:

Questa villa moderna si trova alla periferia di un paese distante 7 km dal mare e 12 km da Poreč. Il paese dispone di una buona infrastruttura con tutti i servizi per la vita quotidiana. Nei dintorni della casa si trovano principalmente case vacanza di recente costruzione, mentre nelle vicinanze ci sono vigneti e uliveti.



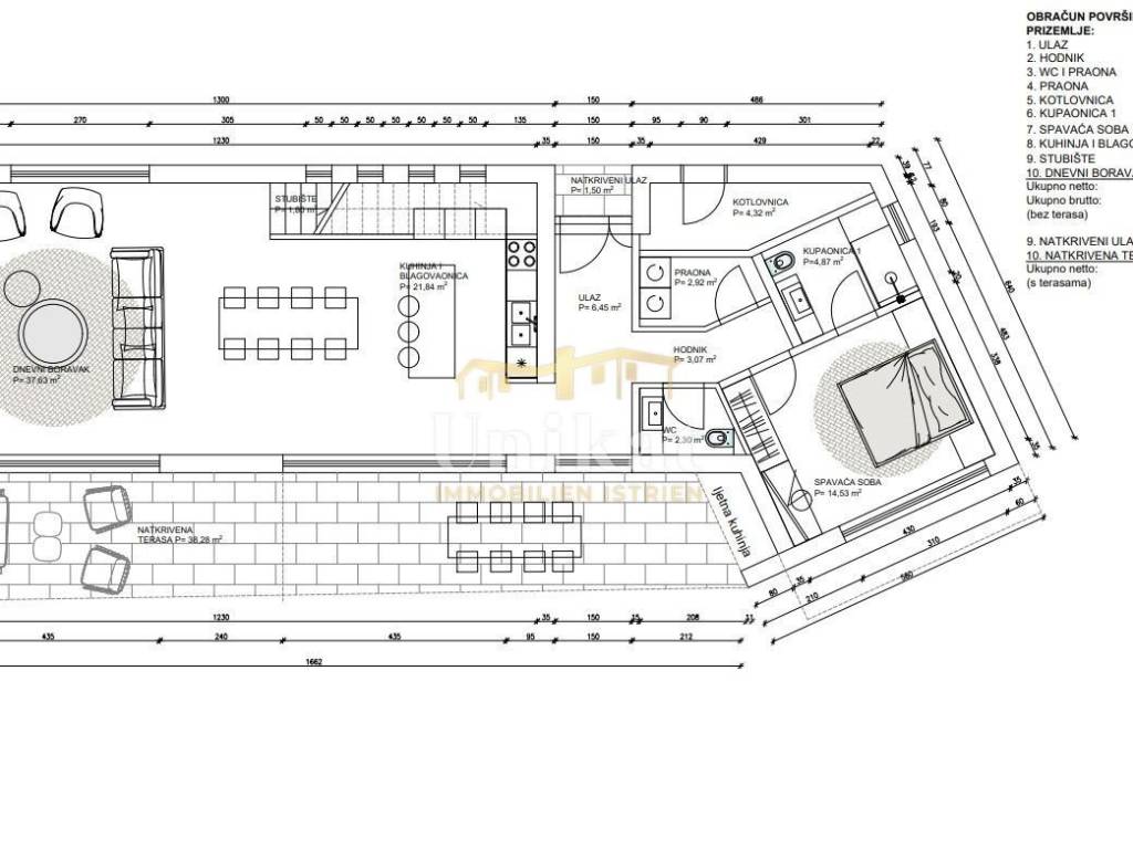
Distribuzione degli ambienti:

La casa è composta da piano terra e primo piano.

Al piano terra si trovano l’ingresso, un ampio soggiorno open space con cucina e sala da pranzo, una camera da letto con bagno privato, un WC per gli ospiti, una lavanderia e una centrale termica. Da tutte le stanze si accede direttamente a una terrazza parzialmente coperta e alla piscina.

Al primo piano ci sono uno studio e tre camere da letto, ciascuna con bagno privato, e una delle camere dispone anche di una sauna. Due camere hanno accesso a un balcone comune scoperto, mentre una camera ha un balcone privato parzialmente coperto.



Dotazioni:

Il riscaldamento è a pavimento elettrico, inoltre la casa è dotata di condizionatori d’aria per riscaldamento e raffrescamento.



Area esterna:

Davanti alla casa si trova una grande piscina di 49 m2, attorno alla quale è sistemata un’area solarium. Il resto del terreno è sistemato come giardino con piante ornamentali, mentre all’ingresso della casa c’è un parcheggio per tre veicoli. L’intero terreno è recintato.



Altro:

Grazie alla posizione leggermente elevata nel paese, la casa gode di una splendida vista sul mare.

La casa viene venduta finita chiavi in mano.

Il prezzo indicato include l’IVA.
Caratteristiche
Tipologia
Terratetto unifamiliare | Classe immobile media
Contratto
Vendita
Ascensore
No
Superficie
250 m²
Locali
4
Camere da letto
4
Bagni
3+
Balcone
No
Terrazzo
No
Distanza dal mare
7.000 m
Informazioni sul prezzo
Prezzo
€ 1.350.000
Prezzo al m²
5.400 €/m²
Efficienza energetica
  • Anno di costruzione

    2023
  • Certificazione energetica

    In attesa di certificazione
Scopri ogni angolo dell'immobile
+6
Opzioni aggiuntive

Contatta l'inserzionista

Oppure