Terreno edificabile in Vendita

€ 130.000
720 m²

Nota

Annuncio aggiornato il 23/03/2026
Descrizione

This description has been translated automatically and may not be accurate

riferimento: 7214

BUIE, TERRENO EDIFICABILE CON PROGETTO IDEALE

BUJE – In vendita terreno edificabile a Buie, con una superficie complessiva di 720 m², di forma regolare e completamente pianeggiante, particolarmente idoneo alla costruzione.
Il terreno si trova in una nuova e curata zona residenziale composta da abitazioni e ville di recente costruzione, offrendo un contesto moderno e piacevole sia per la residenza che per l’investimento. L’allacciamento all’energia elettrica è disponibile direttamente al confine del lotto.

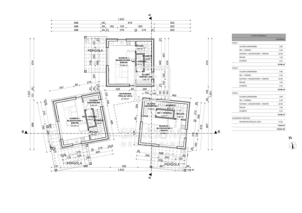
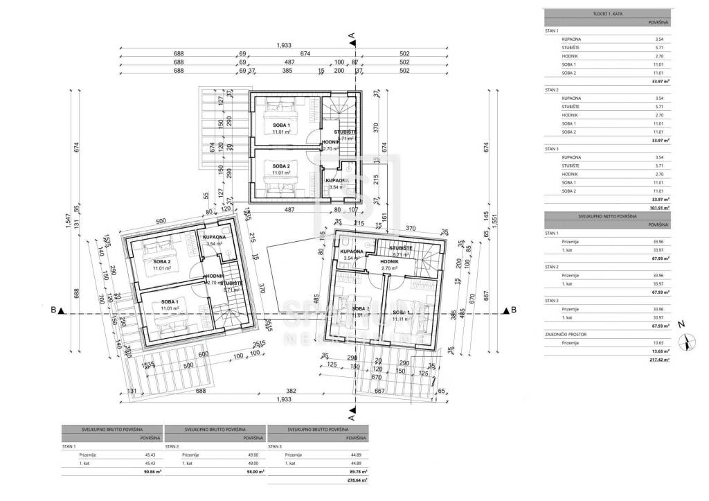
Per il terreno è stato elaborato un progetto preliminare per la realizzazione di un edificio residenziale con tre unità abitative. Ogni unità è progettata su due livelli, con un piano terra funzionalmente organizzato che comprende guardaroba d’ingresso, WC con lavanderia e zona giorno open space con cucina e sala da pranzo, oltre a un locale ripostiglio. Al piano superiore si trovano due camere da letto, un bagno e un disimpegno. La superficie netta di ciascuna unità abitativa è di circa 68 m².

Attraverso il terreno passa una condotta esistente; tuttavia, è già stata ottenuta l’autorizzazione per il suo spostamento, nonché un’offerta dettagliata per l’esecuzione dei lavori di deviazione comprensiva dei materiali necessari, risolvendo così preventivamente questo aspetto tecnico.

Grazie alla posizione, alle infrastrutture disponibili e al progetto preliminare già realizzato, il terreno rappresenta un’eccellente opportunità per una costruzione residenziale di qualità o per un progetto di investimento.

Buie, situata su una collina nell’Istria nord-occidentale, è conosciuta come la “sentinella dell’Istria” grazie alla sua posizione strategica che offre splendide viste sui vigneti e sugli uliveti circostanti. La città conserva il fascino del passato con le sue strette vie in pietra, le mura medievali e le chiese storiche. È rinomata per la sua ricca offerta enogastronomica, che comprende vini pregiati, oli extravergine d’oliva e tartufi, rendendola una meta molto apprezzata dagli amanti dei sapori autentici istriani. La vicinanza al mare e ai confini con la Slovenia e l’Italia la rende un luogo ideale per una vita tranquilla o come punto di partenza per esplorare l’intera regione. Buie rappresenta una perfetta combinazione di tradizione, bellezze naturali e stile di vita moderno.

Per ulteriori informazioni, non esitate a contattarci con fiducia.

Petra Juričić
agente immobiliare con licenza
+385 91 185 1211
petra@spatium.hr

Spatium Immobiliare
+385 51 272 903
info@spatium.hr

ID CODE: 7214

Petra Juričić
Agent s licencom
Mob: +385 91 185 1211
Tel: +385 51 272 903
E-mail: petra@spatium.hr
www.spatium.hr
Caratteristiche
Contratto
Vendita
Tipologia
Terreno edificabile
Superficie
720 m²
Informazioni sul prezzo
Prezzo
€ 130.000
Prezzo al m²
181 €/m²
Planimetria
Scopri ogni angolo dell'immobile
+5
Opzioni aggiuntive

Contatta l'inserzionista

Oppure