1/17


Quadrilocale Poreč, Luka, Parenzo
€ 580.000
4
157 m²
3
T
No
Balcone
Terrazzo
Annuncio aggiornato il 30/01/2026
Descrizione
riferimento: 2623
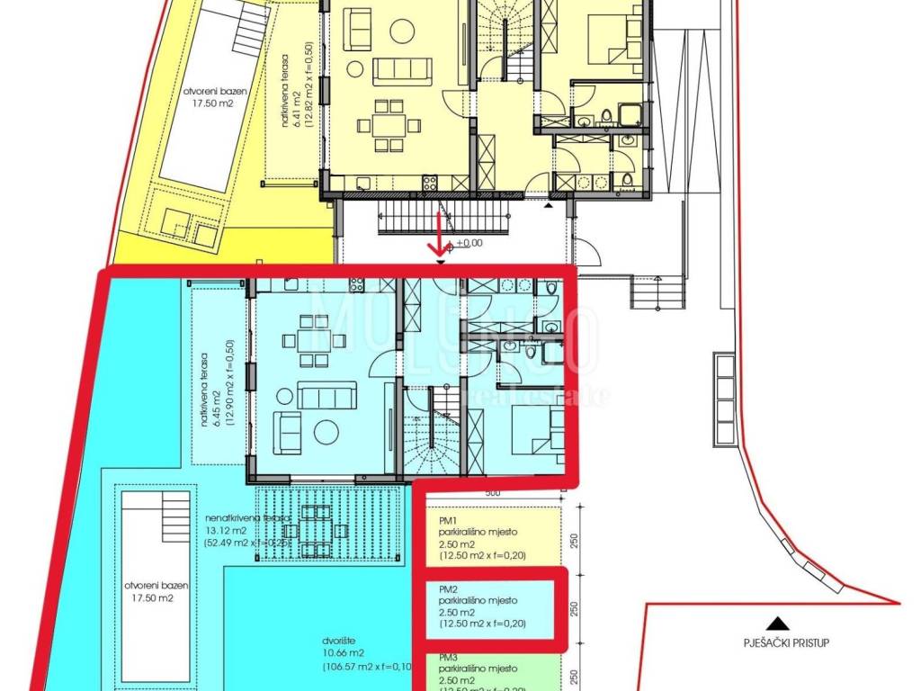
Appartamento/appartamento Poreč, 152,13m2
ID CODE: 2623
Molo Longo nekretnine
Mob: +385 51 858 544
Tel: +385 51 858 544
E-mail: info@mololongorealestate.com
www.mololongorealestate.com
Caratteristiche
- Tipologia
- Appartamento
- Contratto
- Vendita
- Piano
- Piano terra
- Piani edificio
- 1
- Ascensore
- No
- Superficie
- 157 m²
- Locali
- 4
- Camere da letto
- 3
- Bagni
- 3
- Balcone
- Sì
- Terrazzo
- Sì
- Box, posti auto
- 1 posto auto
- Riscaldamento
- Autonomo, ad aria
- Climatizzazione
- Autonomo, freddo/caldo
Altre caratteristiche
Informazioni sul prezzo
- Prezzo
- € 580.000
- Prezzo al m²
- 3.694 €/m²
Scopri ogni angolo dell'immobile
Opzioni aggiuntive