Terreno edificabile in Vendita

€ 1
1.008 m²

Nota

Annuncio aggiornato il 09/02/2026
Descrizione

riferimento: 1931

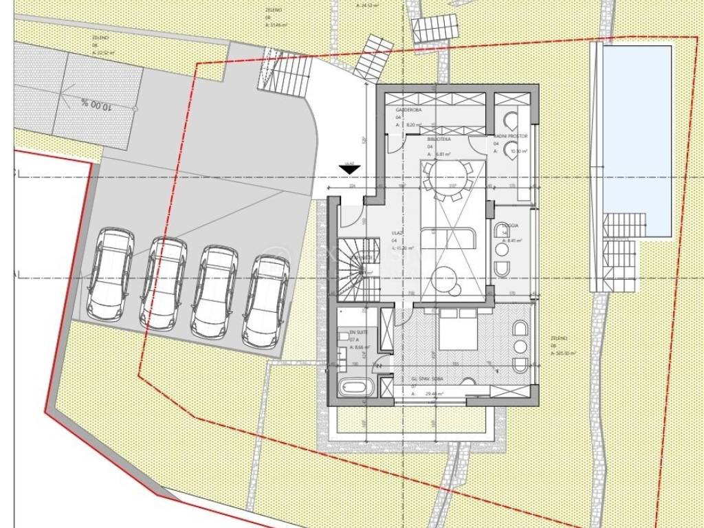
OPATIJA - u prodaji je građevinsko zemljište od 1008 m2 s građevinskom dozvolom, jugoistočne orijentacije s prekrasnim pogledom na more.
Zemljište se prodaje s projektom za samostojeću vilu S +P+1 bruto površine 432m2 i s infinity bazenom.
Lokacija zemljišta je idealna za miran život okružen zelenilom a opet nadomak centra Opatije i mora, svega 10ak minuta pješice.

Vlasnik je pravna osoba, te kupac ne plaća porez na promet nekretnina.

ID CODE: 1931

Dražen Barišić
Agent s licencom
Mob: +385 (0) 91 887 5855
Tel: +385 (0) 51 498 068
E-mail: drazen@exclusive-nekretnine.hr
www.exclusive-nekretnine.hr
Caratteristiche
Contratto
Vendita
Tipologia
Terreno edificabile
Superficie
1.008 m²
Informazioni sul prezzo
Prezzo
€ 1
Prezzo al m²
0 €/m²
Scopri ogni angolo dell'immobile
+6
Opzioni aggiuntive

Contatta l'inserzionista

Oppure