Terratetto unifamiliare Labin, Albona

€ 917.000
4
300 m²
3+
No
Terrazzo

Nota

Annuncio aggiornato il 30/01/2026
Descrizione

This description has been translated automatically and may not be accurate

riferimento: 1400

Casa Labin, 300m2


Queste 5 bellissime ville, ciascuna con il proprio giardino di 2000 mq, si trovano su un terreno di 13500 mq.
Ognuna delle ville ha una superficie netta di 300 mq e una piscina di 48 mq.
Sono stati costruiti secondo il concetto P+1.
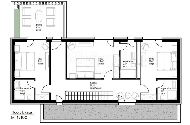
Piano terra con cucina open space, sala da pranzo, soggiorno e area comune con fitness o sauna.
Il primo piano è riservato alla parte notte con 4 camere da letto, 4 bagni e accesso ad un terrazzo di 20 mq.
Sistema di riscaldamento e raffrescamento secondo il sistema a serpentine fini con l'utilizzo di un impianto solare.
Le ville sono in fase di costruzione, ed è possibile negoziare la decorazione interna.
Per la costruzione vengono utilizzati materiali di alta qualità.
La distanza dal centro di Labin è di 3 km e le prime spiagge sono 10 km.
Questo tipo di costruzione consente ai futuri proprietari di godere del proprio immobile o di dedicarsi al turismo di lusso.
L'Istria è una parte della Croazia che, con il suo contenuto e la ricca offerta gastronomica, nonché le bellezze naturali, dà valore aggiunto a tale investimento.

ID CODE: 1400

Arni Badjuk
Agent s licencom
Mob: +385 91 6412 892
Tel: +385 51 858 544
E-mail: arni.badjuk@mololongorealestate.com
www.mololongorealestate.com
Caratteristiche
Tipologia
Terratetto unifamiliare
Contratto
Vendita
Piani edificio
1
Ascensore
No
Superficie
300 m²
Locali
4
Camere da letto
4
Bagni
3+
Balcone
No
Terrazzo
Box, posti auto
4 posto auto
Riscaldamento
Autonomo, ad aria
Climatizzazione
Autonomo, freddo/caldo
Informazioni sul prezzo
Prezzo
€ 917.000
Prezzo al m²
3.057 €/m²
Efficienza energetica
  • Anno di costruzione

    2023
  • Riscaldamento

    Autonomo, ad aria
  • Climatizzatore

    Autonomo, freddo/caldo
  • Certificazione energetica

    Non classificabile
Scopri ogni angolo dell'immobile
+23
Opzioni aggiuntive

Contatta l'inserzionista

Oppure