Terreno edificabile in Vendita

€ 170.000
550 m²

Nota

Annuncio aggiornato il 27/04/2026
Descrizione

This description has been translated automatically and may not be accurate

riferimento: T1310

Milohnići, Krk, 550m2

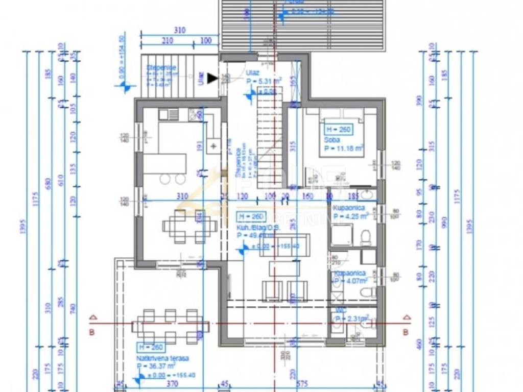
In vendita terreno edificabile di 550 m2 situato a Milohnići sull'isola di Krk, con un progetto per una casa moderna con piscina.
Il progetto prevede la costruzione di una casa (S+P+1) con una superficie totale del piano di 1080 x 1395.
La casa è pensata come un ampio e lussuoso edificio con quattro camere da letto e cinque bagni, ideale per una famiglia o per affitti turistici.
Al piano terra si trova un concetto open space con cucina, sala da pranzo e soggiorno, una camera da letto, due bagni e un WC.
C'è anche una terrazza coperta che offre uno spazio piacevole per il relax vicino alla piscina.
Al piano superiore sono situate tre camere da letto, ognuna con il proprio bagno, garantendo totale privacy e comfort.

Questa proprietà offre la possibilità di un perfetto connubio tra l'architettura moderna e l'ambiente naturale dell'isola di Krk.

Gentili clienti, la provvigione dell'agenzia verrà addebitata secondo le Condizioni Generali di Contratto.

ID CODE: T1310

Vesna Malner
Asistent u posredovanju
Mob: +385912527750
Tel: +385914944144, +38551619770
E-mail: vesnamalner@four-nekretnine.hr
www.four-nekretnine.hr
Caratteristiche
Contratto
Vendita
Tipologia
Terreno edificabile
Superficie
550 m²
Informazioni sul prezzo
Prezzo
€ 170.000
Prezzo al m²
309 €/m²
Opzioni aggiuntive

Contatta l'inserzionista

Oppure