Terreno edificabile in Vendita

€ 250.000
867 m²

Nota

Annuncio aggiornato il 30/01/2026
Descrizione

riferimento: 6313

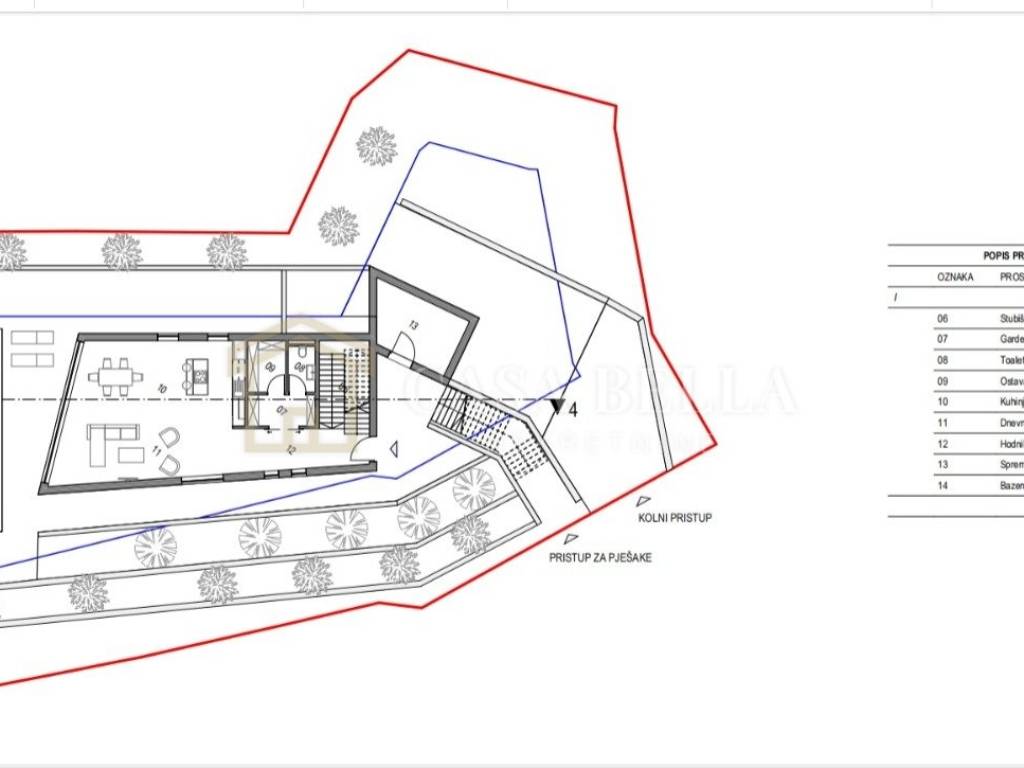
Casa Bella iz svoje ponude izdvaja građevinsko zemljište u Crikvenici s otvorenim pogledom na more.

Zemljište površine 867 m² ima izrađen projekt i ishođenu građevinsku dozvolu za izgradnju moderne vile s bazenom.

Prema projektu, vila je raspoređena na podrum, prizemlje i kat.

U podrumu su predviđeni teretana, prostor za bazensku tehniku, dizalica topline te sauna.
U prizemlju se nalaze garderoba, WC, ostava, kuhinja s blagovaonicom, dnevni boravak te unutarnje stepenice koje vode na prvi kat.
Prvi kat raspolaže s dvije kupaonice, dvije klasične spavaće sobe, jednom master spavaćom sobom s vlastitom kupaonicom, dva balkona, terasom i spremištem.

Prema projektu, kuća također ima garažu za dva automobila.

Zemljište ima pristup s asfaltirane ceste, a sve potrebne komunalije nalaze se u neposrednoj blizini. Smješteno je u izuzetno mirnom dijelu Crikvenice, udaljeno od gradske buke i gužve. Pješačka udaljenost do mora i plaže iznosi 1,5 km.

ID CODE: 6313

Dario Jovanović, bacc.oec.
Agent s licencom
Mob: +385976645685
E-mail: djovanovic@casabellanekretnine.hr
www.casabellanekretnine.hr
Caratteristiche
Contratto
Vendita
Tipologia
Terreno edificabile
Superficie
867 m²
Informazioni sul prezzo
Prezzo
€ 250.000
Prezzo al m²
288 €/m²
Scopri ogni angolo dell'immobile
+14
Opzioni aggiuntive

Contatta l'inserzionista

Oppure