1/10


Bilocale Senj, Segna
€ 175.000
Annuncio aggiornato il 30/01/2026
Descrizione
riferimento: 6416
ID CODE: 6416
Dario Jovanović, bacc.oec.
Agent s licencom
Mob: +385976645685
E-mail: djovanovic@casabellanekretnine.hr
www.casabellanekretnine.hr
Caratteristiche
- Tipologia
- Appartamento
- Contratto
- Vendita
- Piano
- 2 piano
- Piani edificio
- 3
- Ascensore
- No
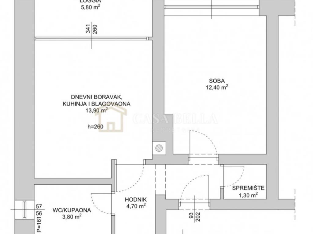
- Superficie
- 42 m²
- Locali
- 2
- Camere da letto
- 1
- Bagni
- 1
- Balcone
- No
- Terrazzo
- No
- Riscaldamento
- Autonomo, ad aria
- Climatizzazione
- Autonomo, freddo/caldo
Informazioni sul prezzo
- Prezzo
- € 175.000
- Prezzo al m²
- 4.167 €/m²
Efficienza energetica
Scopri ogni angolo dell'immobile
Opzioni aggiuntive