Quadrilocale Poreč, Luka, Parenzo

€ 237.329
4
86 m²
2
1
No
Terrazzo

Nota

Annuncio aggiornato il 08/02/2026
Descrizione

This description has been translated automatically and may not be accurate

riferimento: ALG-3669

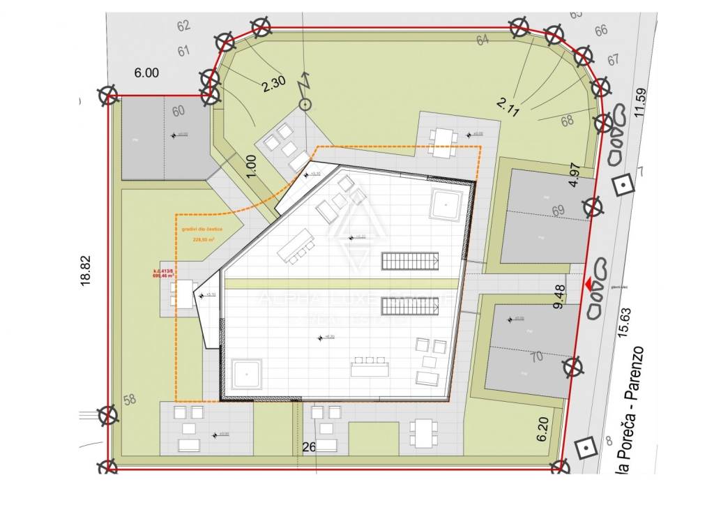
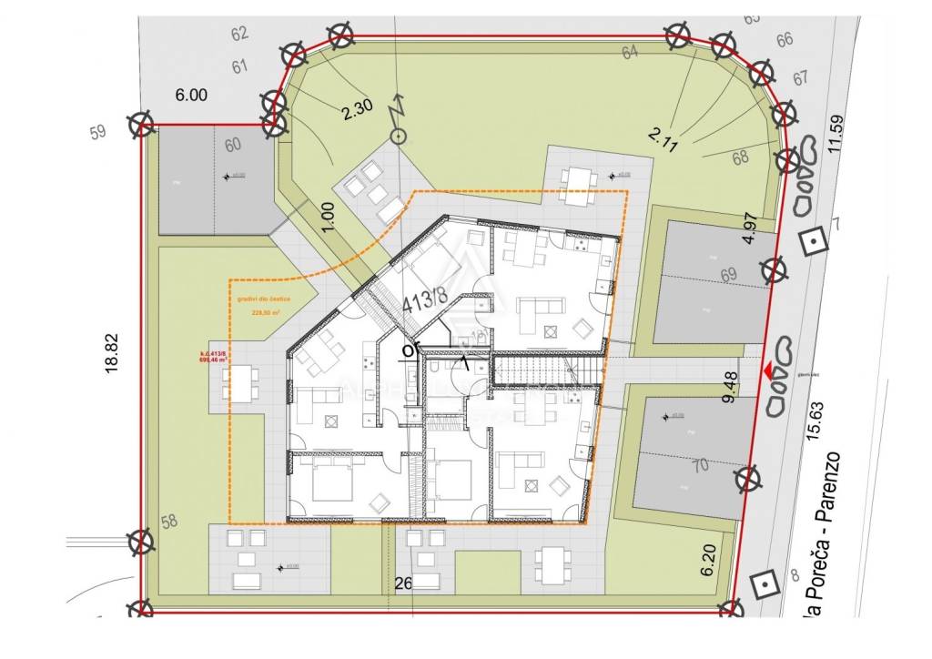
Istria, Poreč – moderno appartamento con cortile

Situato in una zona residenziale tranquilla e curata di Parenzo, a soli 3 km dal mare e dal centro città, questo ampio appartamento è in vendita con una superficie totale calcolata di 86,59 m². Progettato per una vita quotidiana confortevole, offre una disposizione ideale per famiglie e un solido valore nel tempo per chi cerca una casa di qualità in una posizione strategica in Istria.

La superficie interna netta di 81,84 m² è organizzata per la massima funzionalità. Un grande soggiorno open space collega zona living, cucina e sala da pranzo, creando uno spazio luminoso e centrale per la vita di tutti i giorni e per ricevere ospiti. L’appartamento include due comode camere da letto, due bagni moderni, un corridoio pratico, oltre a una lavanderia e un bagno di servizio, rendendo la casa particolarmente funzionale e adatta alle esigenze familiari.

La zona giorno si apre su una terrazza coperta che estende naturalmente gli spazi verso l’esterno e conduce direttamente a un cortile privato, ideale per pranzi all’aperto, relax, gioco per bambini e momenti conviviali. Un ingresso coperto aggiunge ulteriore praticità, mentre è incluso un posto auto privato.

Per comfort tutto l’anno ed efficienza energetica, l’appartamento è dotato di riscaldamento a pavimento alimentato da pompa di calore, garantendo costi di gestione contenuti e un alto standard abitativo, con classe energetica A+. Un’opportunità rara per acquistare un appartamento moderno ed efficiente con spazio esterno in una delle zone residenziali più richieste di Parenzo.

Parenzo è nota per l’eccellente infrastruttura, lo stile di vita mediterraneo e la forte domanda immobiliare, rendendola una delle migliori località dell’Istria per vivere e investire. Nelle vicinanze si trovano spiagge, passeggiate, ristoranti e marine, mentre servizi quotidiani come scuole, negozi e asili sono facilmente raggiungibili. Con il mare e il centro storico a pochi minuti, questa posizione unisce comodità, qualità della vita e valore nel tempo.

La vostra soddisfazione è la nostra missione. Attendiamo con piacere una futura collaborazione!

https://alphaluxegroup.it

ID CODE: ALG-3669

Marijana Budimir
Agent s licencom
Mob: +385 95 363 1893
Tel: +385 52 204 933
E-mail: marijana@alphaluxegroup.com
https://alphaluxegroup.com

Robert Budimir
Agent s licencom
Mob: +385 95 363 1892
Tel: +385 52 204 933
E-mail: robert@alphaluxegroup.com
https://alphaluxegroup.com
Caratteristiche
Tipologia
Appartamento
Contratto
Vendita
Piano
1 piano
Piani edificio
2
Ascensore
No
Superficie
86 m²
Locali
4
Camere da letto
3
Bagni
2
Balcone
No
Terrazzo
Climatizzazione
Autonomo, freddo/caldo
Informazioni sul prezzo
Prezzo
€ 237.329
Prezzo al m²
2.760 €/m²
Efficienza energetica

Consumo di energia

A+

Planimetria
Scopri ogni angolo dell'immobile
+22
Opzioni aggiuntive

Contatta l'inserzionista

Oppure