Terratetto unifamiliare Deklići, Kaštelir-Labinci, Castelliere-Santa Domenica

€ 1.350.000
5+
250 m²
3+
No
Terrazzo

Nota

Annuncio aggiornato il 04/02/2026
Descrizione

This description has been translated automatically and may not be accurate

riferimento: 3912

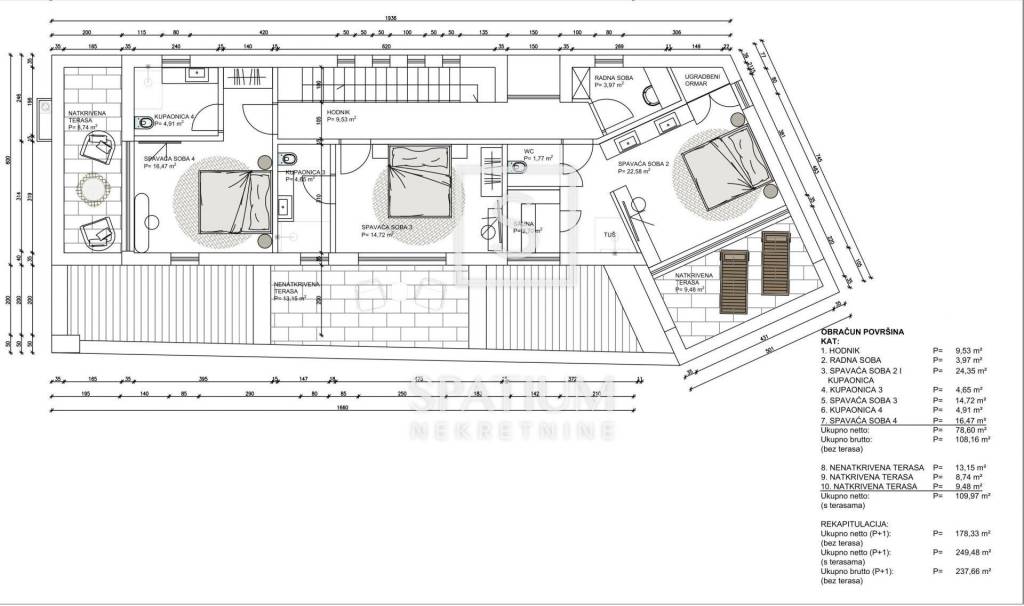
Casa Deklići, Kaštelir-Labinci, 250m2

KAŠTELIR, offriamo una casa moderna in un nuovo edificio, situata in una zona tranquilla del villaggio con una bellissima vista sul mare e vicino a Parenzo. La casa è ideale per chi cerca tranquillità e privacy, e allo stesso tempo vuole essere vicino a tutti i servizi necessari. La superficie della casa è di 249 mq e comprende un ampio soggiorno con cucina e sala da pranzo in un concetto open space, quattro camere da letto, ciascuna con il proprio bagno, e spazi aggiuntivi che garantiscono il massimo comfort. Al piano terra troviamo ingresso, wc, lavanderia, locale caldaia, soggiorno con cucina e sala da pranzo, camera con bagno e terrazzo coperto. Al piano superiore troviamo un disimpegno, uno studio, tre camere da letto, ciascuna con il proprio bagno, un terrazzo coperto ed uno scoperto, perfetti per godersi la vista mare. La casa è dotata di riscaldamento elettrico a pavimento e aria condizionata in tutte le stanze, e sono già stati installati tutti gli impianti e le infrastrutture necessarie. Il cortile di 1000 mq comprende una spaziosa piscina di 49 mq, ideale per rilassarsi e godersi le giornate di sole. La proprietà viene offerta "chiavi in mano" e il completamento previsto della costruzione è previsto per la fine del 2024. Kaštelir è un affascinante villaggio istriano situato su dolci colline, a pochi chilometri dalla costa. Circondato da vigneti e uliveti, offre splendide viste panoramiche sulla natura e sul mare in lontananza. Questo luogo tranquillo è noto per la sua gastronomia locale e gli eventi locali che celebrano la tradizione istriana. La vicinanza di centri turistici come Parenzo lo rende attraente per chi cerca la tranquillità e allo stesso tempo vuole essere vicino al mare e a tutti i servizi. Kaštelir è l'ideale per rilassarsi, ma anche per godersi lo stile di vita istriano. Per tutte le altre informazioni contattateci con fiducia. Spatium nekretnine + 385 51 272 903 info@spatium.hr

ID CODE: 3912

Petra Juričić
Agent s licencom
Mob: +385 91 185 1211
Tel: +385 51 272 903
E-mail: petra@spatium.hr
www.spatium.hr
Caratteristiche
Tipologia
Terratetto unifamiliare
Contratto
Vendita
Piani edificio
2
Ascensore
No
Superficie
250 m²
Locali
5+
Camere da letto
4
Bagni
3+
Balcone
No
Terrazzo
Box, posti auto
2 posto auto
Riscaldamento
Autonomo, ad aria
Climatizzazione
Autonomo, freddo/caldo
Altre caratteristiche
  • Impianto di allarme
Informazioni sul prezzo
Prezzo
€ 1.350.000
Prezzo al m²
5.400 €/m²
Efficienza energetica
  • Riscaldamento

    Autonomo, ad aria
  • Climatizzatore

    Autonomo, freddo/caldo
  • Certificazione energetica

    Non classificabile
Planimetria
Scopri ogni angolo dell'immobile
+13
Opzioni aggiuntive

Contatta l'inserzionista

Oppure