Terreno edificabile in Vendita

€ 85.000
454 m²

Nota

Annuncio aggiornato il 07/05/2026
Descrizione

riferimento: 3078

Prodaje se građevinsko zemljište u Svetom Ivanu Zelini, Topličica, s ishođenom projektnom dokumentacijom i pravomoćnom građevinskom dozvolom za gradnju obiteljske kuće s bazenom.

Zemljište je pravilnog pravokutnog oblika, ukupne površine 454 m², širine uz cestu približno 18 metara.

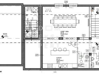
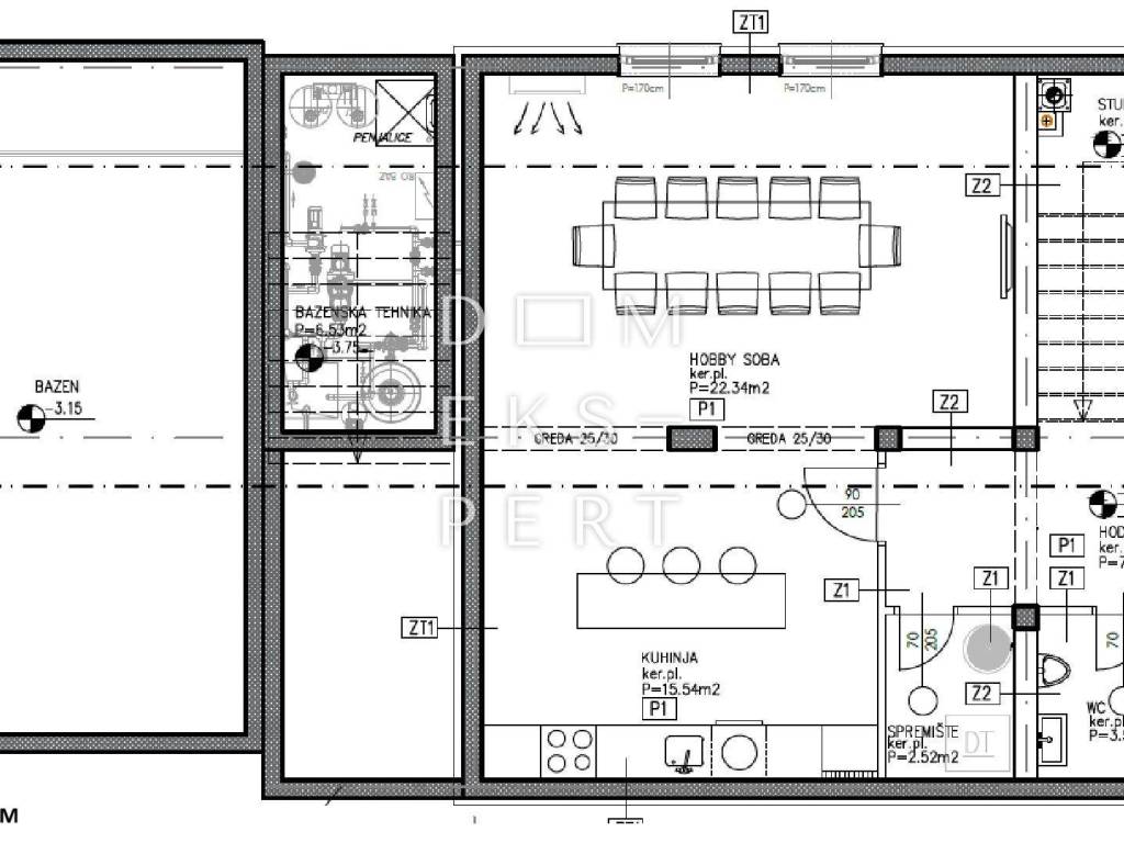
Projektom je predviđena gradnja kuće s bazenom ukupne bruto površine 258.21 m².
Sastoji se od podruma, prizemlja i kata.
PODRUM:
- hobby soba
- kuhinja
- spremište
- toalet
- hodnik

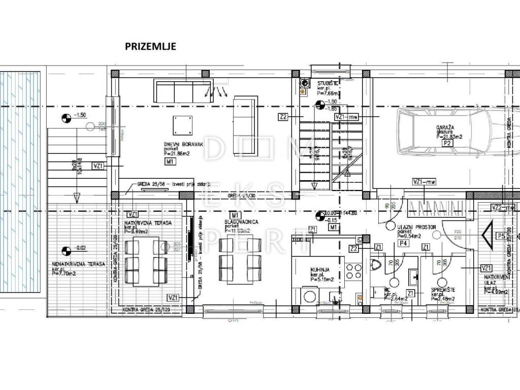
PRIZEMLJE:
- ulazni prostor
- spremište
- toalet
- kuhinja, dnevni boravak i blagovaonica
- stubište
- garaža
- terasa

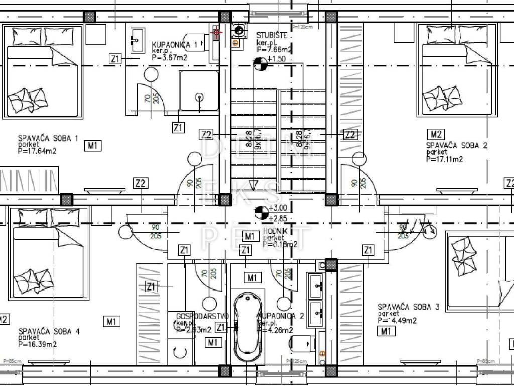
KAT:
- hodnik
- četiri spavaće sobe
- dvije kupaonice

Komunalna infrastuktura (voda, struja, plin) nalazi se na cesti ispred parcele. Za odvodnju je predviđena sabirna jama.

KONTAKT:
Valentina Banovec
Tel: +385 1 2013 007
Mob: +385 99 4620 956
Mail: valentina.banovec@domekspert.hr

ID CODE: 3078
Caratteristiche
Contratto
Vendita
Tipologia
Terreno edificabile
Superficie
454 m²
Informazioni sul prezzo
Prezzo
€ 85.000
Prezzo al m²
187 €/m²
Scopri ogni angolo dell'immobile
+12
Opzioni aggiuntive

Contatta l'inserzionista

Oppure