Bilocale nuovo, piano terra, Luka, Parenzo

€ 190.000
2
54 m²
1
T
Balcone
Cantina

Nota

Annuncio aggiornato il 16/02/2026
Descrizione

This description has been translated automatically and may not be accurate

riferimento: 472

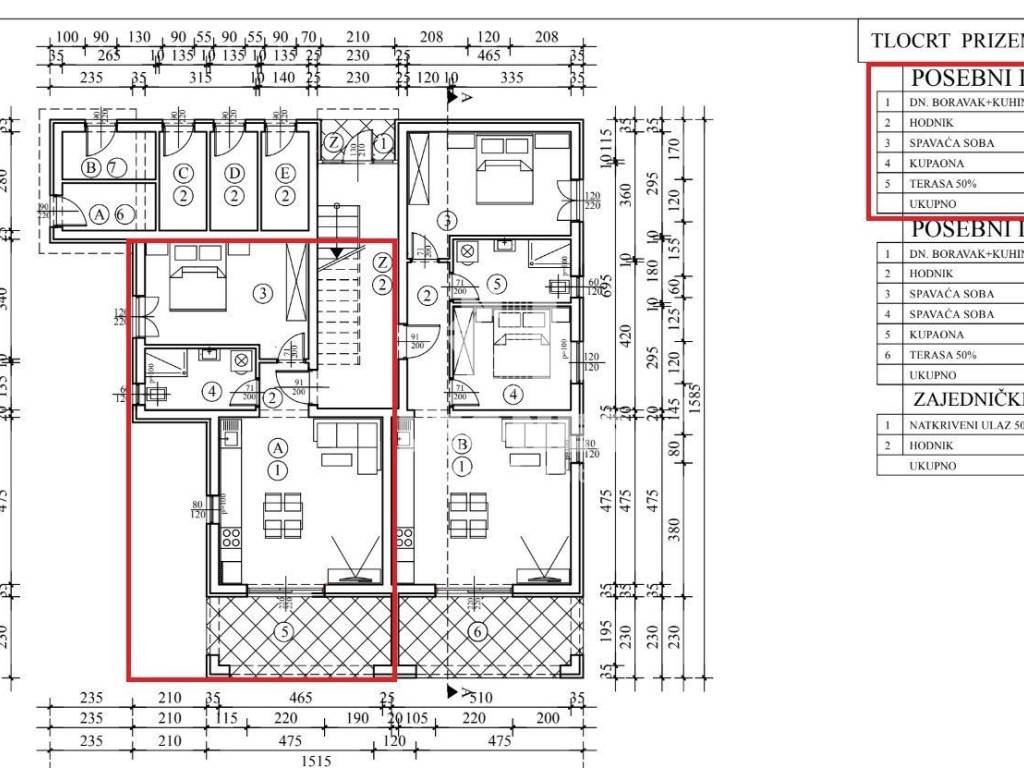
Quality apartment on the ground floor with a large garden and storage room in the vicinity of Poreč

A quality apartment on the ground floor with a large garden and a storage room is for sale in the vicinity of Poreč.

The apartment consists of a hallway, a living room with a kitchen and a dining room, and a spacious bedroom, as well as a storage room on the ground floor of the building of 3.58 m2.
The apartment also has a yard of 360 m2.

All floors in the apartments are covered with ceramic tiles with a purchase price of up to 25.00/m2. In the rooms, laminate is installed at a purchase price of up to 25.00/m2. Bathroom and kitchen walls are covered with ceramic tiles with a purchase price of up to 25.00/m2.
The entrance doors to the apartments are anti-burglary and fire-resistant. The room doors are solid, veneered. The sanitary appliances are medium-class, showers with channels, possibly cabins, according to the customer's choice.

Each residential unit has internal installations of telephone connection, terrestrial and satellite antenna in the living room and rooms.

Heating and cooling of the apartments is solved by air conditioners in the living room and bedrooms

Underfloor heating with a thermostat is installed in the bathrooms.

Do not miss this opportunity because this apartment with a huge yard can be yours if you contact us in time.
The apartment can be used for residential purposes as well as for tourist purposes.

www.leones-realestate.hr
Caratteristiche
Tipologia
Appartamento
Contratto
Vendita
Piano
Piano terra
Piani edificio
2
Superficie
54 m²
Locali
2
Camere da letto
1
Bagni
1
Arredato
No
Balcone
Box, posti auto
1 posto auto
Riscaldamento
Autonomo, a pavimento, alimentazione elettrica
Climatizzazione
Freddo/caldo
Altre caratteristiche
  • Porta blindata
Informazioni sul prezzo
Prezzo
€ 190.000
Prezzo al m²
3.519 €/m²
Efficienza energetica

Consumo di energia

A

Scopri ogni angolo dell'immobile
+14
Opzioni aggiuntive

Contatta l'inserzionista

Oppure