Terratetto unifamiliare 142 m², nuova, Centar, Luka, Finida, Umago

€ 750.000
4
142 m²
2
Balcone
Cantina

Nota

Annuncio aggiornato il 01/05/2026
Descrizione

This description has been translated automatically and may not be accurate

riferimento: 730

Stone house in the first row to the sea in Lovrečica, near Umag

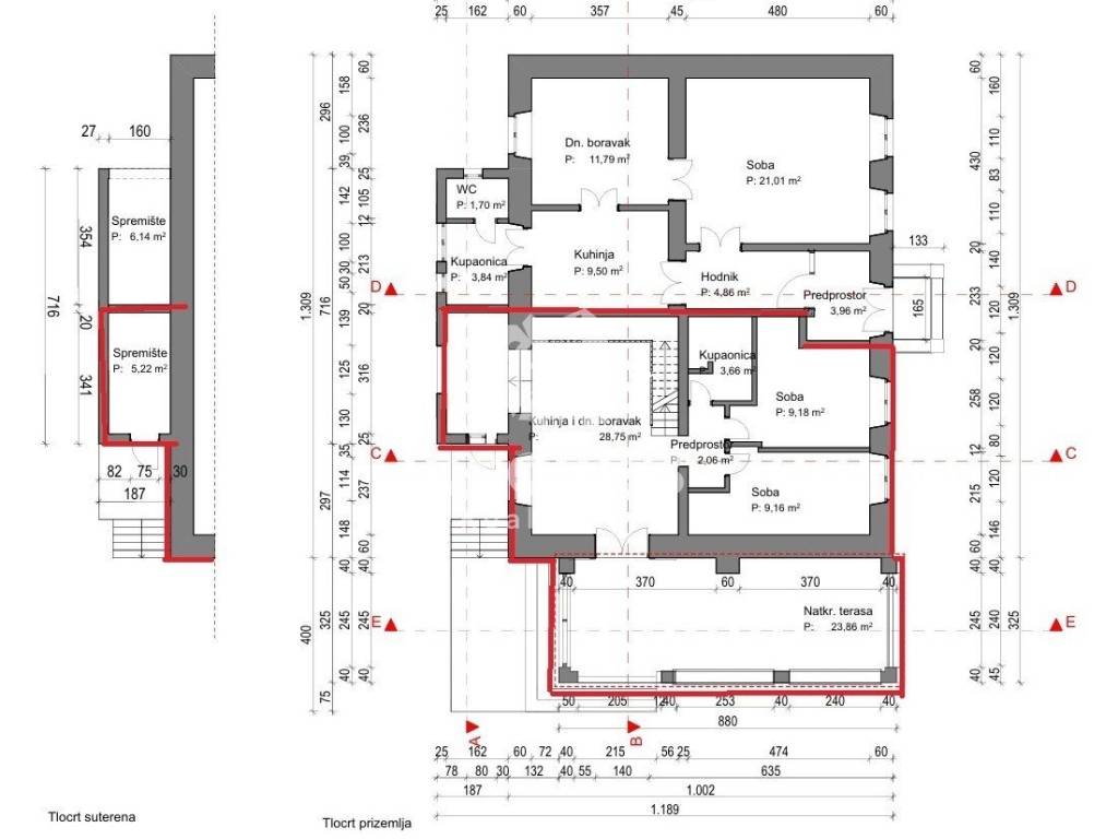
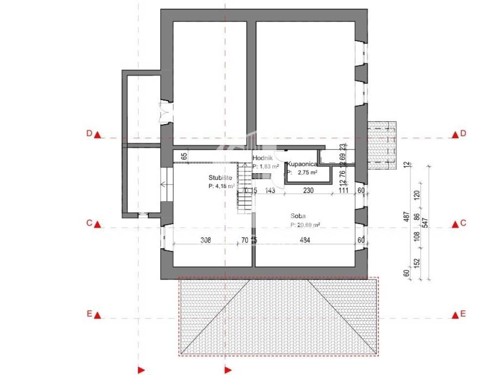
A beautiful stone house in the first row to the sea in Lovrečica, near Umag is for sale. The house was completely renovated about 15 years ago. The net usable area of the house is 142 m2 and it extends over two floors. On the ground floor there is a living room, dining room, bathroom, 2 bedrooms, kitchen and a large terrace with a sea view. In the basement there is also a storage room which is practical for storing things. On the first floor there is another bedroom and a bathroom. The plot has an area of 297 m2. The house has 2 parking spaces.

The price is not fixed. The house is only 15 m from the sea and there are beautifully arranged beaches nearby.

www.leones-realestate.hr
Caratteristiche
Tipologia
Terratetto unifamiliare
Contratto
Vendita
Piano
1
Piani edificio
2
Superficie
142 m² | commerciale 439 m²
Locali
4
Camere da letto
3
Bagni
2
Arredato
No
Balcone
Box, posti auto
1 posto auto
Riscaldamento
Autonomo, alimentazione elettrica
Climatizzazione
Freddo/caldo
Dettaglio superficie

Abitazione

Piano
1
Superficie
142,0 m²
Coefficiente
100%
Tipo superficie
Principale
Sup. commerciale
142,0 m²

Terreno

Piano
Piano terra
Superficie
297,0 m²
Coefficiente
100%
Tipo superficie
Accessoria
Sup. commerciale
297,0 m²
Informazioni sul prezzo
Prezzo
€ 750.000
Prezzo al m²
1.708 €/m²
Efficienza energetica

Consumo di energia

C

Scopri ogni angolo dell'immobile
+21
Opzioni aggiuntive

Contatta l'inserzionista

Oppure