Bilocale nuovo, secondo piano, Vodizze

€ 380.000
2
89 m²
2
2

Nota

Annuncio aggiornato il 11/05/2026
Descrizione

This description has been translated automatically and may not be accurate

riferimento: 4421

Luxury apartment S6 under construction on the second floor of a smaller building in Vodice is for sale.



Luxury apartment S6 is for sale, located on the second floor of a smaller building with a total of six residential units, located in a quiet part of the town of Vodice.



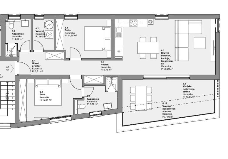
The apartment with a total area of ​​89 m2 consists of a living room connected to the kitchen and dining room in the so-called open concept with a size of 30.29m2, two bedrooms, two bathrooms with a toilet, a laundry room and a partially covered terrace of 20m2.



Equipment and construction quality:

The building is built from the highest quality materials

Top quality ceramics and carpentry

Mosquito nets on the windows

Air conditioners

Underfloor heating

Superior sanitary facilities

Video surveillance



Additional information:

The apartment has one parking spot

Distance to the beach: 350 m

Distance to the city center: 800 m

Expected completion of construction and occupancy: June 2025.



For more information, we are at your disposal on the phone number: +385911118585 or e-mail: iva@palace.agency.



The agency commission is 3% + VAT of the achieved purchase price.


Se vuoi saperne di più, puoi parlare con Iva Gracin.
Caratteristiche
Tipologia
Appartamento
Contratto
Vendita
Piano
2
Superficie
89 m²
Locali
2
Camere da letto
2
Bagni
2
Box, posti auto
1 posto auto
Climatizzazione
Autonomo, freddo/caldo
Dettaglio superficie

Altro

Piano
2
Superficie
89,0 m²
Coefficiente
100%
Tipo superficie
Principale
Sup. commerciale
89,0 m²
Informazioni sul prezzo
Prezzo
€ 380.000
Prezzo al m²
4.270 €/m²
Efficienza energetica
  • Anno di costruzione

    2025
  • Stato

    Nuovo / In costruzione
  • Climatizzatore

    Autonomo, freddo/caldo
  • Certificazione energetica

    Non classificabile
Scopri ogni angolo dell'immobile
+3
Opzioni aggiuntive

Contatta l'inserzionista

Oppure