Trilocale nuovo, terzo piano, Centar - Gulići, Parenzo

€ 450.000
3
175 m²
2
3
Cantina

Nota

Annuncio aggiornato il 09/02/2026
Descrizione

This description has been translated automatically and may not be accurate

riferimento: 2231

Istria, Poreč area

An exclusive penthouse for sale, located on the 3rd floor of a new residential building with an elevator, just 1 km from the sea, in a well-organized town offering all amenities necessary for a comfortable and high-quality lifestyle.

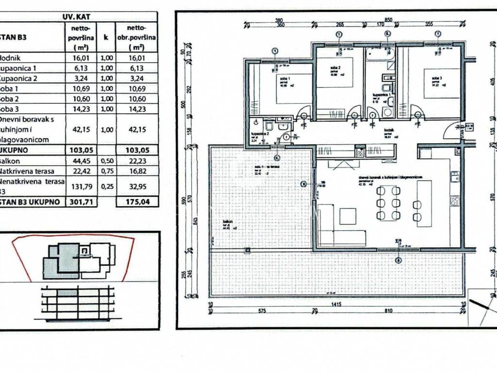
The penthouse is exceptionally spacious and excellently laid out, and finished with high-quality, carefully selected materials, ensuring durability, functionality, and a high standard of living. It has a total net area of 175.04 m and consists of an entrance hall, three bedrooms, two bathrooms, a kitchen with dining area, and a spacious living room with access to a covered terrace with sea view, providing additional comfort and living quality.

A special highlight of the property is the spacious roof terrace of 131 m, offering numerous possibilities to create a private comfort zone for relaxation, socializing, or enjoying the beautiful sea view.

Heating and cooling are provided by air conditioning units, while electric underfloor heating is installed in the living room, dining area, kitchen, and bathrooms.

The penthouse includes a storage room and one parking space.

This property is ideal for solving housing needs or as a long-term investment.

Viewing the property is possible with a signed mediation agreement, which is the basis for further action in connection with the sale and commission in accordance with the Act on mediation in real estate transactions. In the case of sales, the agency commission amounts to 3% + VAT and is charged when concluding the pre-contract/sales contract.
Se vuoi saperne di più, puoi parlare con Ivica Barić.
Caratteristiche
Tipologia
Appartamento
Contratto
Vendita
Piano
3 piano
Superficie
175 m²
Locali
3
Camere da letto
3
Bagni
2
Arredato
No
Box, posti auto
1 posto auto
Riscaldamento
Autonomo, a pavimento, alimentazione elettrica
Climatizzazione
Freddo/caldo
Informazioni sul prezzo
Prezzo
€ 450.000
Prezzo al m²
2.571 €/m²
Efficienza energetica
  • Anno di costruzione

    2025
  • Stato

    Nuovo / In costruzione
  • Riscaldamento

    Autonomo, a pavimento, alimentazione elettrica
  • Climatizzatore

    Freddo/caldo
Scopri ogni angolo dell'immobile
+5
Opzioni aggiuntive

Contatta l'inserzionista

Oppure