Quadrilocale nuovo, secondo piano, Traù

€ 186.000
4
56 m²
1
2

Nota

Annuncio aggiornato il 11/02/2026
Descrizione

This description has been translated automatically and may not be accurate

riferimento: 6477-1

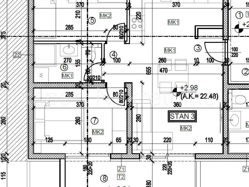
Trogir, two-bedroom apartment 56 m2 in a new building in a smaller residential building with only 7 apartments. The apartment is located on the first floor of the building, north-south oriented and consists of two bedrooms, bathroom, hallway, kitchen with dining room and living room and a large terrace (9 m2). The apartment has one outdoor parking space. Possible purchase of an additional parking space (10,000 euros).The building is located in a quiet and peaceful location only 900 m from the city center and close to the Plodine shopping center. The start of work is planned for spring 09/2026 and the completion is planned 18 months after the start of construction. Quality equipment (inverter air conditioning, underfloor heating in the bathroom, six-chamber PVC joinery, quality ceramics. burglar-proof doors, thermal facade, ... etc.). Payment by construction stages.For more information and reservations, contact the agency.
Caratteristiche
Tipologia
Appartamento
Contratto
Vendita
Piano
2 piano
Superficie
56 m²
Locali
4
Camere da letto
2
Bagni
1
Climatizzazione
Centralizzato, freddo/caldo
Altre caratteristiche
  • Porta blindata
  • Impianto tv con parabola satellitare
Informazioni sul prezzo
Prezzo
€ 186.000
Prezzo al m²
3.321 €/m²
Efficienza energetica
  • Anno di costruzione

    2026
  • Stato

    Nuovo / In costruzione
  • Climatizzatore

    Centralizzato, freddo/caldo
  • Certificazione energetica

    Non classificabile
Scopri ogni angolo dell'immobile
+16
Opzioni aggiuntive

Contatta l'inserzionista

Oppure