Quadrilocale nuovo, secondo piano, Traù

€ 182.000
4
54 m²
1
2

Nota

Annuncio aggiornato il 11/02/2026
Descrizione

This description has been translated automatically and may not be accurate

riferimento: 6470-1

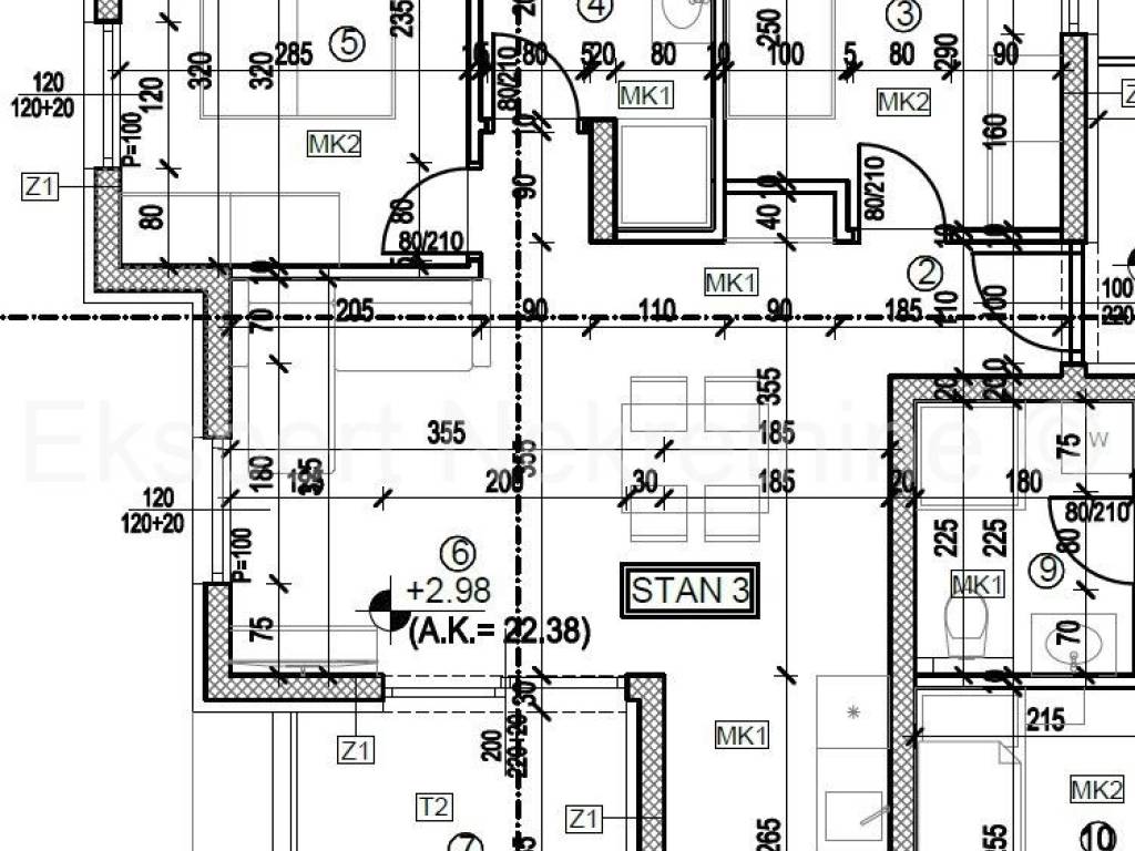
Trogir, two-bedroom apartment 54 m2 in a new building in a smaller residential building with only 7 apartments. The apartment is located on the first floor of the building, north-south-west-east oriented and consists of two bedrooms, bathroom, hallway, kitchen with dining room and living room and balcony (6 m2). The apartment has one outdoor parking space. It is possible to purchase an additional parking space (10,000 euros).
The building is located in a quiet and peaceful location only 900 m from the city center and near the Plodine shopping center. The start of work is planned for spring 09/2026 and the completion is planned 18 months after the start of construction. Quality equipment (inverter air conditioning, underfloor heating in the bathroom, six-chamber PVC joinery, quality ceramics. burglar-proof doors, thermal facade, ... etc.). Payment by construction stages.
For more information and reservations, contact the agency.
Caratteristiche
Tipologia
Appartamento
Contratto
Vendita
Piano
2 piano
Superficie
54 m²
Locali
4
Camere da letto
2
Bagni
1
Climatizzazione
Centralizzato, freddo/caldo
Altre caratteristiche
  • Porta blindata
  • Impianto tv con parabola satellitare
Informazioni sul prezzo
Prezzo
€ 182.000
Prezzo al m²
3.370 €/m²
Efficienza energetica
  • Anno di costruzione

    2026
  • Stato

    Nuovo / In costruzione
  • Climatizzatore

    Centralizzato, freddo/caldo
  • Certificazione energetica

    Non classificabile
Scopri ogni angolo dell'immobile
+9
Opzioni aggiuntive

Contatta l'inserzionista

Oppure