map icon

Bilocale piano terra, Spalato

Spalato
€ 331.000
2
161 m²
T

Nota

Annuncio aggiornato il 02/05/2026
Descrizione

riferimento: 3329

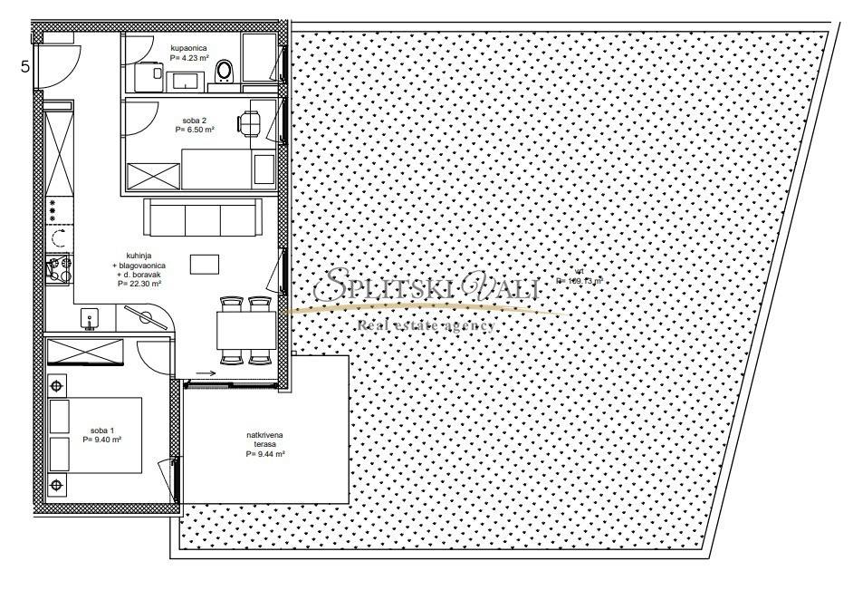
STAN B5 prizemlje
Dvosobni stan 58,06 m obračunske površine (sa vrtom)
Orijentacija: jug istok

Stan se sastoji od dnevnog boravka s kuhinjom i blagovaonicom, dvije spavaće sobe, kupaonice, natkrivene terase i vrta površine 109,13 m. Ukupna obračunska površina iznosi 58,06 m. Tlocrt i detaljna specifikacija nalaze se u slikama oglasa.

Oprema uključuje troslojni parket, talijanske pločice, podno grijanje u kupaonici, troslojnu stolariju, električne podizače roleta, protuprovalna i protupožarna vrata te video parlafon.

Projekt se sastoji od dvije moderne stambene zgrade s podzemnom garažom, smještene na mirnoj lokaciji idealnoj za obiteljski život, u blizini svih sadržaja.

Rok završetka: kraj 2027.
Garažno mjesto: 35.000
Plaćanje: fazno, prema dinamici gradnje.

Kontakt:
Petra: +385 99 165 5551
Antonija: +385 99 160 0441

Se vuoi saperne di più, puoi parlare con Antonija Rajčić.
Caratteristiche
Tipologia
Appartamento
Contratto
Vendita
Piano
Piano terra
Piani edificio
3
Superficie
161 m²
Locali
2
Camere da letto
2
Arredato
No
Climatizzazione
Freddo/caldo
Informazioni sul prezzo
Prezzo
€ 331.000
Prezzo al m²
2.056 €/m²
Efficienza energetica
  • Climatizzatore

    Freddo/caldo
  • Certificazione energetica

    Esente
Scopri ogni angolo dell'immobile
+5
Inserzionista
scheda agenzia
Opzioni aggiuntive

Contatta l'inserzionista

Oppure