map icon

Appartamento 191 m², Nona

Nona
€ 1.455.381
191 m²
Arredato

Nota

Annuncio aggiornato il 01/05/2026
Descrizione

riferimento: s249

Luksuzan stan s bazenom – samo 50 m od mora | Zaton, Zadar
Predstavljamo vam moderan, luksuzno opremljen stan smješten u jednom od najpoželjnijih naselja u okolici Zadra – Zatonu, svega 50 metara od mora i plaže. Idealan spoj elegancije, komfora i prestižne lokacije. Samo nekoliko koraka od kristalno čistog mora i plaže, s privatnim pješačkim putem koji vodi direktno do prekrasne plaže. Stan je gotov,kompletno namješten i odmah useljiv.
Lokacija iz snova:
·       Zaton, poznat prekrasnim plažama i opuštenoj atmosferi
·       Plaža udaljena svega 50 m, dostupna preko privatnog pješačkog puta
·       U blizini vrhunski restorani, kafići i sportski sadržaji
·       Brza povezanost – samo 20 minuta do Zadra i međunarodne zračne luke
Vaš novi dom sadrži:
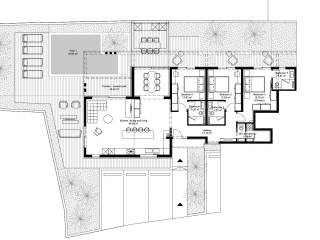
·       Ukupna tlocrtna površina: 474,78 m²
·       Neto korisna površina stana: 191,10 m²
·       Tri elegantne spavaće sobe, uključujući glavnu sobu s en-suite kupaonicom za potpunu privatnost
·       Tri luksuzne kupaonice plus dodatni WC/praonica za maksimalnu udobnost
·       Prostrani dnevni boravak s kuhinjom i blagovaonicom od gotovo 49 m², savršen za druženja i opuštanje
·       Velika natkrivena terasa od preko 46 m² s blagovaonskim stolom – idealna za nezaboravne obroke na otvorenom
·       Privatni bazen od 25 m² za uživanje u suncu i potpunoj privatnosti
·       Uređena okućnica s prostorom za sunčanje i vlastitim parkirnim mjestima
 
Luksuzni eksterijer i vrhunski ugođaj:
Privatni bazen i elegantna lounge zona za potpuni odmor i užitak. Prostor osmišljen za objedovanje i opuštanje na otvorenom, daleko od znatiželjnih pogleda.
Interijer i pametna tehnologija:
Kuhinja vrhunski uređena s Miele uređajima, kuhinjski otok s “waterfall” dizajnom i LED rasvjetom, granitne radne plohe i integrirani uređaji najviše klase.Podno grijanje za maksimalnu udobnost tijekom cijele godine. Multisplit klima sustav renomiranih brendova LG i Armco. KNX pametni sustav za jednostavno upravljanje roletama, rasvjetom i grijanjem putem aplikacije. Sonos bežični audio sustav i stabilan WiFi, uz mogućnost Starlink veze. Samsung Smart TV u dnevnom boravku i svim spavaćim sobama. Dekorativna LED rasvjeta i drveni paneli koji unose toplinu i profinjenost u svaki kutak.
Idealan izbor za:
·       One koji traže savršen spoj luksuza i prirodne ljepote Jadrana
·       Investitore koji žele ekskluzivnu nekretninu za vrhunski turistički najam
·       Obitelji koje žele privatnu oazu uz more, bez kompromisa
·       Kupce željne useljive rezidencije s vrhunskom opremom i bez dodatnih ulaganja
Kontaktirajte nas odmah za ekskluzivnu priliku! Ne propustite jedinstvenu priliku za život ili investiciju iz snova na jednoj od najatraktivnijih lokacija na Jadranu.
 
 
Caratteristiche
Tipologia
Appartamento
Contratto
Vendita
Superficie
191 m²
Arredato
Box, posti auto
1 in box privato/box in garage
Altre caratteristiche
  • Porta blindata
Informazioni sul prezzo
Prezzo
€ 1.455.381
Prezzo al m²
7.620 €/m²
Efficienza energetica
  • Anno di costruzione

    2025
  • Certificazione energetica

    Esente
Scopri ogni angolo dell'immobile
+7
Opzioni aggiuntive

Contatta l'inserzionista

Oppure