map icon

Appartamento primo piano, Kolan

Kolan
€ 280.919
60 m²
1

Nota

Annuncio aggiornato il 30/04/2026
Descrizione

riferimento: s305

Gajac, Pag – moderan stan u novogradnji na odličnoj lokaciji, samo 250 m od prekrasne plaže
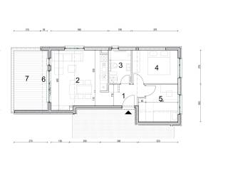
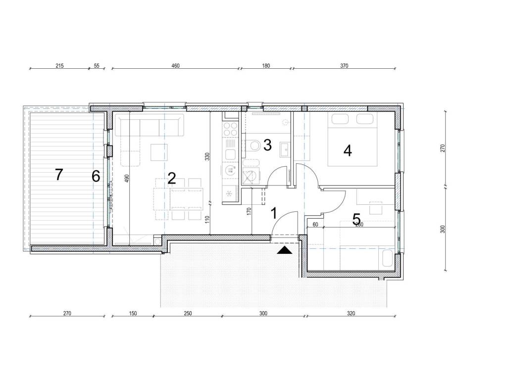
U ponudi je atraktivan i funkcionalan stan smješten u mirnom dijelu Gajca, na otoku Pagu, idealan za odmor, turistički najam ili cjelogodišnje stanovanje. Nekretnina se nalazi na izvrsnoj lokaciji, svega 250 metara od uređene plaže i kristalno čistog mora, u neposrednoj blizini svih potrebnih sadržaja. Stan oznake S2 nalazi se na prvom katu manje stambene zgrade s ukupno četiri stana, što osigurava dodatnu privatnost i ugodan ambijent. Neto površina stana iznosi 59,77 m², dok je bruto tlocrtna površina 75,15 m². Sastoji se od kuhinje s blagovaonicom i dnevnim boravkom u otvorenom konceptu, kupaonice, dvije udobne spavaće sobe te natkrivene terase s koje se pruža lijep pogled na more. Stanu pripada jedno vanjsko parkirno mjesto. U izgradnji i opremanju koriste se isključivo visokokvalitetni materijali renomiranih proizvođača, što jamči dugotrajnost, funkcionalnost i moderan izgled. Zgrada je spojena na gradsku kanalizaciju. Planirani završetak gradnje i useljenje je do 1.7.2026. godine. Prodavatelj je pravna osoba u sustavu PDV-a, stoga kupac ne plaća porez na promet nekretninama. Ova nekretnina predstavlja izvrsnu priliku za kupnju kvalitetnog stana u novogradnji na jednoj od najtraženijih lokacija na Pagu, s velikim potencijalom za turistički najam i osobno korištenje. Kontaktirajte nas za više informacija ili dogovor oko razgledavanja
Caratteristiche
Tipologia
Appartamento
Contratto
Vendita
Piano
1 piano
Superficie
60 m²
Arredato
No
Box, posti auto
1 in box privato/box in garage
Altre caratteristiche
  • Porta blindata
Informazioni sul prezzo
Prezzo
€ 280.919
Prezzo al m²
4.682 €/m²
Efficienza energetica
  • Anno di costruzione

    2026
  • Certificazione energetica

    Esente
Scopri ogni angolo dell'immobile
+5
Opzioni aggiuntive

Contatta l'inserzionista

Oppure