Terreno edificabile in Vendita

€ 350.000
917 m²

Nota

Annuncio aggiornato il 25/03/2026
Descrizione

riferimento: 432

Na prodaju je građevinsko zemljište površine 917 m² smješteno u Zatoglavu. Parcela se nalazi 50 metara od mora uz pristupni put, što joj osigurava otvoren i trajan pogled na more. Pored parcele nalazi se sva infrastruktura.

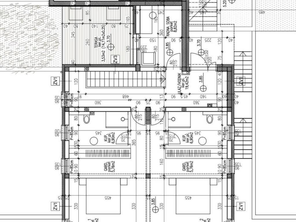
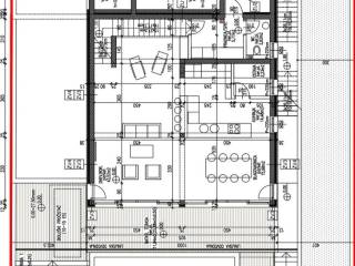
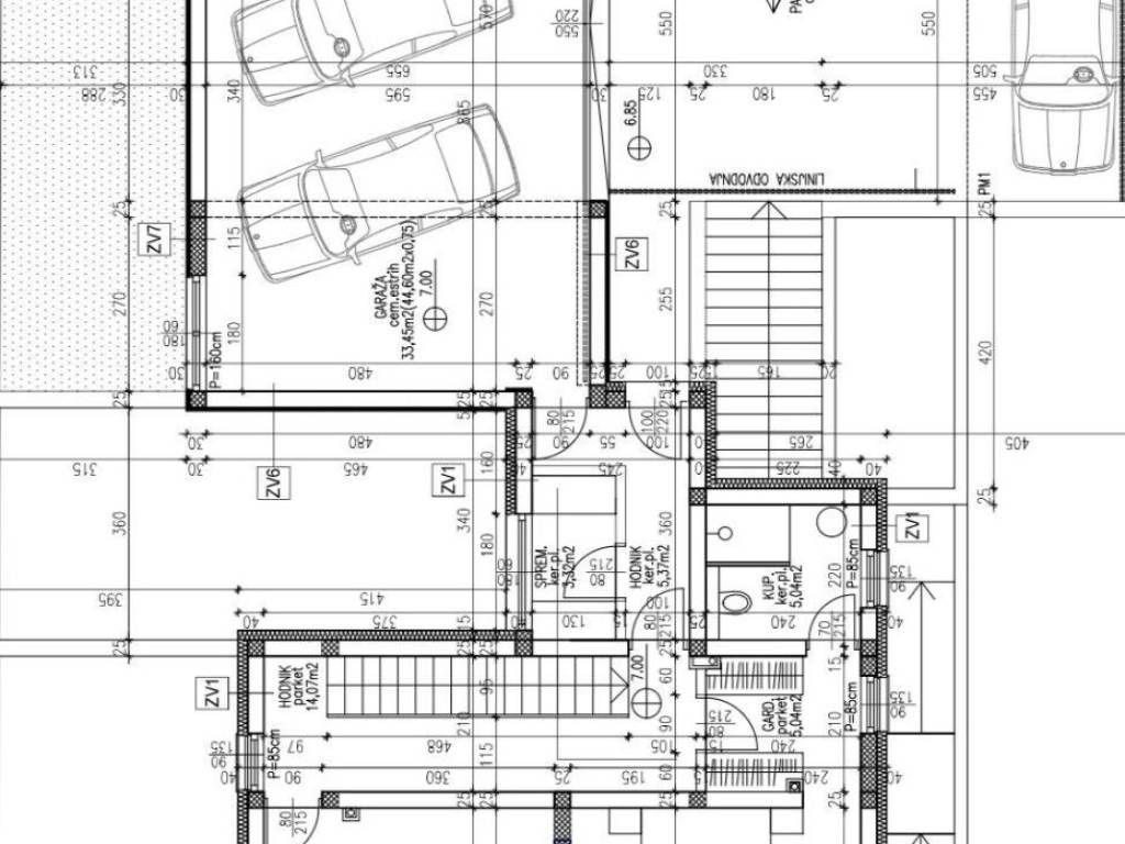
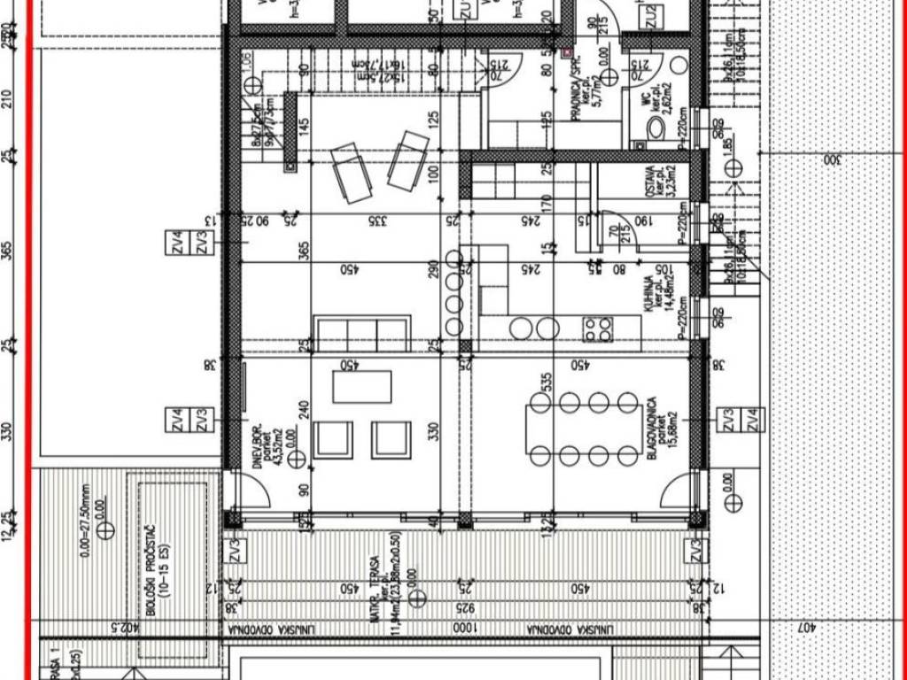
Parcela ima projekt za izgradnju vile, što budućem vlasniku omogućuje brži početak gradnje i jasnu viziju budućeg razvoja.
Zemljište posjeduje pravomoćnu građevinsku dozvolu, spremno za realizaciju projekta.

Plaža je udaljena svega 50 metara ispod zemljišta, što osigurava atraktivnu lokaciju i neposrednu blizinu mora.

Za sve dodatne informacije i dogovor o razgledavanju, stojimo na raspolaganju.

ID CODE: 432

Andro Jakoliš
Mob: +385 99 347 3562
E-mail: andro@materra.estate
www.materra.estate
Caratteristiche
Contratto
Vendita
Tipologia
Terreno edificabile
Superficie
917 m²
Informazioni sul prezzo
Prezzo
€ 350.000
Prezzo al m²
382 €/m²
Scopri ogni angolo dell'immobile
+10
Opzioni aggiuntive

Contatta l'inserzionista

Oppure