Terreno edificabile in Vendita

€ 278.000
695 m²

Nota

Annuncio aggiornato il 08/04/2026
Descrizione

riferimento: Z-0067-Z

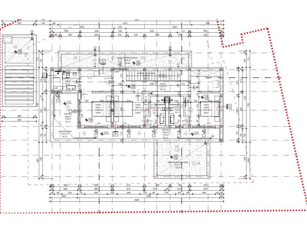
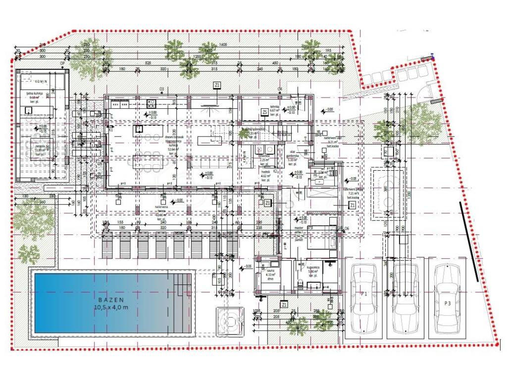
ZATON, pokraj Nina, prodaje se građevinsko zemljište od 695m2 sa gotovim projektom i građevinskom dozvolom spremno za gradnju!

Građevinsko zemljište se nalazi u mirnom dijelu mjesta Zaton u kojem su izgrađene kuće za odmor i ville s bazenom.
Zemljište je pravilnog oblika cca 26 x 23 m i spremno za gradnju vile s bazenom, struja i voda su u blizini.
Udaljenost od mora je 1300 m te od centra samog mjesta 350 m.
Uz to zemljište nalazi se još jedno zemljište također s gotovim projektom i spremno za gradnju od istog prodavatelja te postoji mogućnost kupnje oba zemljišta zajedno (624m2).

Zaton je malo mjesto smješteno između dvaju povijesnih gradova Nina od kojeg je udaljen svega 2 km i od Zadra od kojeg je udaljen 12 km, te je poznato po istoimenom turističkom naselju.
Ispod naselja koje ima izvrsnu turističku ponudu, nalazi se duga šljunčano-pješčana plaža.
Obala je pjeskovita, idealna za dječju igru, a more visoke kvalitete.
Bogato je raznim rekreacijskim sadržajima i idealno je za istinski odmor i opuštanje od stresa svakodnevnice.

Vlasništvo uredno 1/1.

*KUPAC NE PLAĆA AGENCIJSKU PROVIZIJU!

ID CODE: Z-0067-Z

Alma Cipurković
Mob: +385 (0)91 400 1616
Tel: +385 (0)99 284 1984
E-mail: alma@perlanekretnine.hr
www.perlanekretnine.hr

Iva Prtenjača
Mob: +385 (0)91 400 1414
Tel: +385 (0)99 284 1984
E-mail: iva@perlanekretnine.hr
www.perlanekretnine.hr
Caratteristiche
Contratto
Vendita
Tipologia
Terreno edificabile
Superficie
695 m²
Informazioni sul prezzo
Prezzo
€ 278.000
Prezzo al m²
400 €/m²
Scopri ogni angolo dell'immobile
+9
Opzioni aggiuntive

Contatta l'inserzionista

Oppure