Terreno edificabile in Vendita

€ 550.000
582 m²

Nota

Annuncio aggiornato il 03/03/2026
Descrizione

riferimento: z848

www.euroestate-nekretnine.hr (ID: z848)

KUPCI NE PLAĆAJU POSREDNIČKU PROVIZIJU, A KUPNJOM NEKRETNINE IZ NAŠE PONUDE MOGU SUDJELOVATI U NAŠOJ NAGRADNOJ IGRI I OSVOJITI CITROEN C3 !

NAGRADNA IGRA TRAJE OD 01.03.2026. - 01.03.2027., A PRAVILA SU DOSTUPNA NA NAŠOJ STRANICI www.euroestate-nekretnine.hr

KUPAC NE PLAĆA POSREDNIČKU PROVIZIJU.

PRODAJA – ATRAKTIVNA LOKACIJA U CENTRU VARAŽDINA S GRAĐEVINSKOM DOZVOLOM I GLAVNIM PROJEKTOM

U ponudi je kuća s pripadajućim zemljištem ukupne površine 582 m² (stambeni objekt 138 m² + dvorište 444 m²), smještena na jednoj od najpoželjnijih lokacija u širem centru grada.

- izdana građevinska dozvola za rušenje postojećeg objekta i gradnju novog
- izrađen kompletan glavni projekt s 3D vizualizacijama
- podmirene komunalije i osigurani svi priključci
- gradilište otvoreno (09/2025.)
- dozvola prema starom GUP-u – mogućnost gradnje 225 m² tlocrtno x 3 etaže = 675 m² BRP
- smješteno u zoni centra grada
- vlasnik je pravna osoba

IZVEDENO:
- izvršen iskop za produžetak objekta
- izgrađena garaža dimenzija 10 x 7 m
- podignut potporni zid visine 4 m i duljine 30 m (osigurana privatnost i odvajanje)
- obavljeni svi radovi mogući tijekom čekanja građevinske dozvole

PLANIRANI PROJEKT:

- predviđena je izgradnja moderne urbane zgrade s ukupno 6 stanova na jednom brojilu, ravnim krovom površine cca 200 m² (idealno za solarne panele) te osiguranim svim priključcima

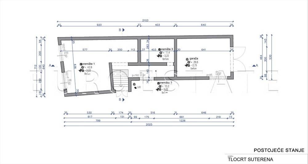
SUTEREN
- Apartman 1 (ulična strana – igraonica ili stan)
- Kotlovnica i stubište (središnji dio)
- Apartman 2 (cca 160 m²) – prostrani dnevni boravak, više kupaonica, kuhinja 12 m² s izlazom u dvorište

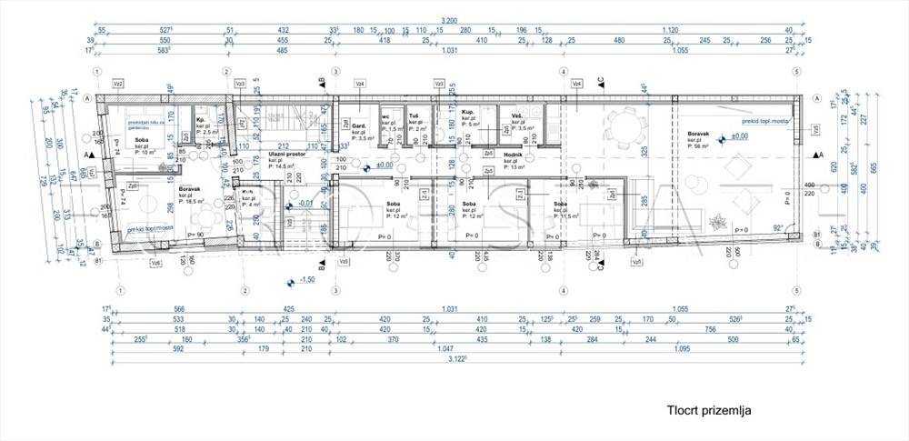
PRIZEMLJE
- Apartman 3 (manji stan s jednom spavaćom sobom)
- Stubište (sredina)
- Apartman 4 (cca 160 m²) – obiteljski stan s 3 spavaće sobe, garderobom, više sanitarija, dnevnim prostorom za druženje od 56 m² i prostorijom za gospodarstvo

KAT
-Apartman 5 – dnevni boravak s kuhinjom i terasom 16 m²
- Apartman 6 – luksuzna jedinica s terasom od 35 m² (predviđen prostor za saunu i jacuzzi), velike staklene stijene orijentirane prema istoku i jugu

- prednji ulaz projektiran je visine 3–4 m, čime se osigurava maksimalna privatnost dvorišta i zaštita od pogleda.
- tlocrtne osnove i presjeci dostupni su u galeriji fotografija

ZA VIŠE INFORMACIJA I RAZGLEDAVANJE NEKRETNINE KONTAKTIRAJTE NAS NA +385 (0)99 674 2492 ILI PUTEM MAIL-a NAVEDENOG U OGLASU.
PRILIKOM PREGLEDA NEKRETNINE POTENCIJALNIM KUPCIMA NE NAPLAĆUJU SE NIKAKVI TROŠKOVI.

KONAČNU CIJENU NEKRETNINE KUPAC UGOVARA S PRODAVATELJEM NAKON PREGLEDA.
Caratteristiche
Contratto
Vendita | Immobile a reddito
Tipologia
Terreno edificabile
Superficie
582 m²
Disponibilità
Libero
Qualificazione urbanistica
Unità multiple
Dislivello terreno
Leggero
Area edificabile
675 m²
Accesso in strada/servitù di passaggio
In strada asfaltata
Altre caratteristiche
  • Allaccio acqua
  • Allaccio elettricità
  • Allaccio fogne
  • Allaccio gas
  • Illuminazione pubblica
  • Recintato
Informazioni sul prezzo
Prezzo
€ 550.000
Prezzo al m²
945 €/m²
Scopri ogni angolo dell'immobile
+31
Opzioni aggiuntive

Contatta l'inserzionista

Oppure