Trilocale Donji grad, Tuškanac, Zagabria

€ 2.000/mese
3
140 m²
T
Balcone
Terrazzo

Nota

Annuncio aggiornato il 02/04/2026
Descrizione

riferimento: EUROVILLA-439906

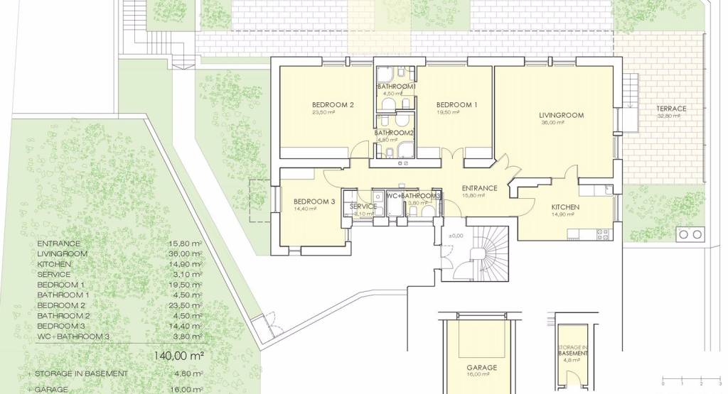
Bosanska ulica, jedna od ljepših lokacija u centru grada. Stambeno uredski prostor zatvorene površine od 140 m2 s prekrasnom terasom od 36 m2 i garažom. Nalazi se u obnovljenoj i kvalitetno održavanoj zgradi. Stan ses nalazi u prizemlju a sastoji se od ulaznog hodnika, toaleta, kuhinje, dnevnog boravka, blagovaonice, tri spavaće sobe te tri kupaonice. Kompletno adaptiran - stolarija, zidovi, instalacije... Na odličnoj mikrolokaciji svega 50 metara od tramvajske linije, parka, trgovine, Britanskog trga.. Sve dodatne informacije na upit. DOSTUPNO OD 1.3.2026.... Više na eurovilla.hr, ID: 439906
Se vuoi saperne di più, puoi parlare con Katarina Prša.
Caratteristiche
Tipologia
Appartamento
Contratto
Affitto
Piano
Piano terra
Superficie
140 m²
Locali
3
Camere da letto
3
Balcone
Terrazzo
Dettaglio superficie

Abitazione

Piano
Piano terra
Superficie
140,0 m²
Coefficiente
100%
Tipo superficie
Principale
Sup. commerciale
140,0 m²
Informazioni sul prezzo
Prezzo
€ 2.000/mese
Prezzo al m²
14 €/m²
Dettaglio dei costi
Cauzione
Non indicata
Efficienza energetica
  • Stato

    Buono / Abitabile
  • Certificazione energetica

    Esente
Planimetria
Scopri ogni angolo dell'immobile
+11
Inserzionista
scheda agenzia
Opzioni aggiuntive

Contatta l'inserzionista

Oppure