Bilocale Trogir, Traù

€ 210.000
2
56 m²
T

Nota

Annuncio aggiornato il 15/04/2026
Descrizione

riferimento: EUROVILLA-574329

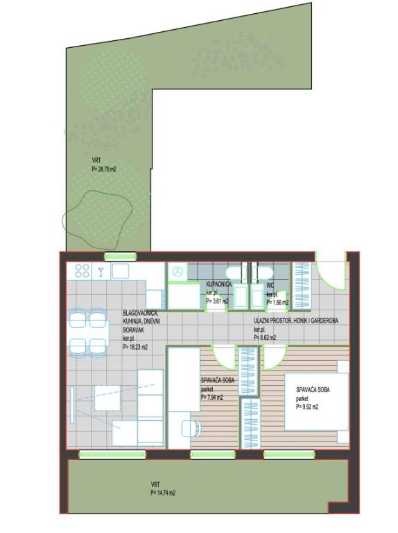
Trogir, na pješačkoj udaljenosti od strogog centra grada , predviđena je izgradnja dvojnog objekta moderne vizure, s funkcionalnim rasporedom stambenih jedinica.Stan B1 - smješten je u suterenu/ prizemlju objekta, a sastoji se od hodnika, kupaonice, wc-a, dvije spavaće sobe i dnevnog prostora ( kuhinja s blagovaonicom i dnevni boravak ). Pripada mu vrt s južne i sjeverne strane ukupne površine 43, 5 m2, kao i jedno vanjsko parkirno mjesto. Površina zatvorenog stambenog dijela iznosi 50 m2, dok je ukupna 56. 80 m2.Početak gradnje je predviđen na jesen 2025. godine.Za sva dodatna pitanja, stojimo vam na raspolaganju.... Više na eurovilla.hr, ID: 574329
Se vuoi saperne di più, puoi parlare con Ivan Didović.
Caratteristiche
Tipologia
Appartamento
Contratto
Vendita
Piano
Piano terra
Superficie
56 m²
Locali
2
Camere da letto
2
Dettaglio superficie

Abitazione

Piano
Piano terra
Superficie
56,8 m²
Coefficiente
100%
Tipo superficie
Principale
Sup. commerciale
56,8 m²
Informazioni sul prezzo
Prezzo
€ 210.000
Prezzo al m²
3.750 €/m²
Efficienza energetica
  • Stato

    Nuovo / In costruzione
  • Certificazione energetica

    Esente
Planimetria
Scopri ogni angolo dell'immobile
+2
Inserzionista
scheda agenzia
Opzioni aggiuntive

Contatta l'inserzionista

Oppure