Trilocale Donji Banovci, Sebenico

€ 950.000
3
114 m²
2
Balcone

Nota

Annuncio aggiornato il 03/03/2026
Descrizione

riferimento: EUROVILLA-682205

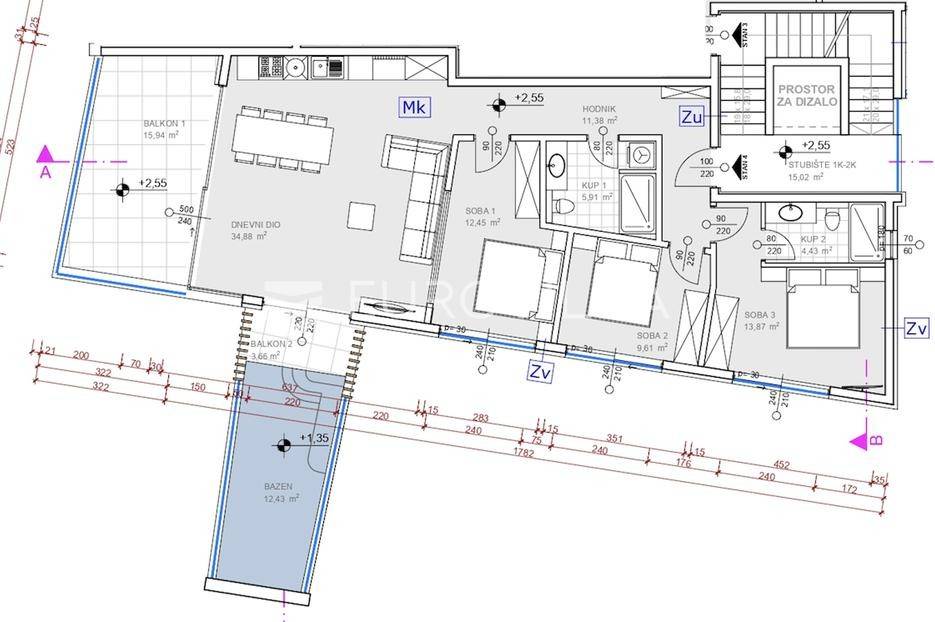
Grebaštica, luksuzan stan s bazenom i pogledom na more, neto korisne površine 110,54 m². Stanu pripada i velika krovna terasa sa sunčalištem i prostorom za roštiljanje. Stan se nalazi na drugom katu moderne zgrade prvi red do mora. Pripada mu jedno parkirno mjesto u garaži, te ostava u podrumu. Površina zatvorenog prostora je 92,53 m², a površina terase je 15,55 m².Stan se sastoji od dnevnog boravka s kuhinjom i blagovaonicom, tri spavaće sobe od kojih jedna ima privatnu kupaonicu, jedne zasebne kupaonice, te prostrane terase s bazenom i pogledom na more. Iznad stana nalazi se prostrana krovna terasa sa sunčalištem i prostorom za roštiljanje. Svaka prostorija ima klima uređaj, te stan ima ugrađeno i podno grijanje. Zgrada je opremljena dizalom.Zgrada se nalazi svega 40 metara od mora. Riječ je o luksuznom projektu koji se sastoji od dvije zgrade, s ukupno 9 stanova, gdje svaki stan ima privatan bazen.Za sve ostale informacije stojimo na raspolaganju.... Više na eurovilla.hr, ID: 682205
Se vuoi saperne di più, puoi parlare con Domagoj Matić.
Caratteristiche
Tipologia
Attico
Contratto
Vendita
Piano
2
Superficie
114 m²
Locali
3
Camere da letto
3
Balcone
Dettaglio superficie

Abitazione

Piano
2
Superficie
114,8 m²
Coefficiente
100%
Tipo superficie
Principale
Sup. commerciale
114,8 m²
Informazioni sul prezzo
Prezzo
€ 950.000
Prezzo al m²
8.333 €/m²
Efficienza energetica
  • Stato

    Nuovo / In costruzione
  • Certificazione energetica

    Esente
Scopri ogni angolo dell'immobile
+20
Inserzionista
scheda agenzia
Opzioni aggiuntive

Contatta l'inserzionista

Oppure