Bilocale Donja Dubrava, Retkovec, Zagabria

€ 299.750
2
66 m²
4

Nota

Annuncio aggiornato il 03/03/2026
Descrizione

riferimento: EUROVILLA-855513

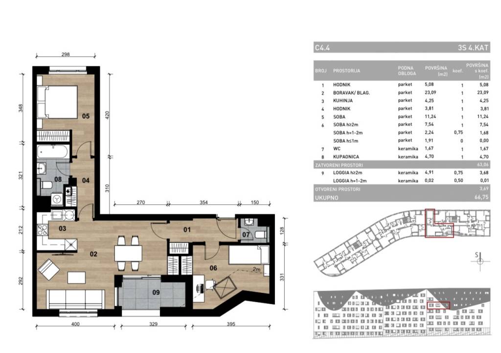
Zagreb, Dubrava, dvosoban stan, u novogradnji u izgradnji,Objekt je projektiran prema najsuvremenijim standardima gradnje; dok je čitava konstrukcija armirano - betonska.Stan oznake C4.4 na četvrtom katu, površine 66,75 m2.Sastoji se od: ulaznog hodnika, dnevnog boravka i blagovaonice s izlazom na loggiu ( površine 4,91 m2), kuhinje, spavaće sobe i toaleta, drugog hodnika hodnika te spavaće sobe i kupaonice .Spavaća soba i dnevni boravak opremljeni su klima uređajima uz mogućnost upravljanja putem aplikacije.Grijanje i priprema tople vode preko plinskih kondenzacijskih bojlera. Ugrađen je sustav za daljinsko očitanje i digitalni termostat uz mogućnost spajanja na Wi-fi te upravljanje putem aplikacije. U svim prostorijama su moderni pločasti radijatoriOprema stana sadrži : protupožarna i protuprovalna ulazna vrata s zvučnom izolacijom, troslojna stakla, aluminijske rolete, hrastov parket te keramičke pločice prve klase.Vrhunska izgradnja s visoko kvalitetnim materijalima renomiranih proizvođača.Uz stan je obvezna kupnja vanjskog parkirnog mjesta ili garažnog parkirnog mjesta. Spremište opcionalno.Odlična lokacija. Blizina dječjeg vrtića, osnovne škole, bolnice, doma zdravlja, shopping centra, crkve, ljekarne i dermatološke klinike, blizina i parka Maksimir teZET okretište Dubrava, dok je autobusna stanica u neposrednoj blizini zgrade.Planirano useljenje: jesen 2026 godine.Ostale informacije na upit.... Više na eurovilla.hr, ID: 855513
Se vuoi saperne di più, puoi parlare con Antea Kodžoman.
Caratteristiche
Tipologia
Appartamento
Contratto
Vendita
Piano
4
Superficie
66 m²
Locali
2
Camere da letto
2
Dettaglio superficie

Abitazione

Piano
4
Superficie
66,8 m²
Coefficiente
100%
Tipo superficie
Principale
Sup. commerciale
66,8 m²
Informazioni sul prezzo
Prezzo
€ 299.750
Prezzo al m²
4.542 €/m²
Efficienza energetica
  • Stato

    Nuovo / In costruzione
  • Certificazione energetica

    Esente
Planimetria
Inserzionista
scheda agenzia
Opzioni aggiuntive

Contatta l'inserzionista

Oppure