Terreno edificabile in Vendita

€ 203.000
718 m²

Nota

Annuncio aggiornato il 10/03/2026
Descrizione

riferimento: 45797

ISTRA, MOTOVUN - Zemljište s građevinskom dozvolom i panoramskim pogledom

Motovun je popularna turistička destinacija koja je danas na glasu kao centar hedonista iz cijeloga svijeta.
Drevni istarski akropolski gradić smješten na vrhu 277 metara visokog brijega koji dominira dolinom rijeke Mirne jedan je od najljepših starih gradova na Mediteranu. Do njega vodi najduže istarsko stepenište s 1052 stepenica. Motovun je grad-spomenik na UNESCO World Heritage pristupnoj listi. Ono što Motovun i njegovu općinu, koja se prostire na površini od 33,58 km, čini posebnima su biološke raznolikosti, bogat biljni svijet i osobita mikroklimatska obilježja.
Zbog specifičnih geomorfoloških karakteristika sa brojnim brežuljcima pažnju plijeni prirodnim ljepotama i nezaboravnim panoramskim pogledima koji ispunjuju dušu.

Nedaleko tog pitoresknog istarskog srednjovjekovnog gradića, na prodaju je zemljište s građevinskom dozvolom i panoramskim pogledom.
Mikrolokacija nudi autentičan doživljaj malog istarskog mjesta, intimnost, rasterećenost od svakog užurbanog napora i odmor od buke a ujedno blizinu dinamičnih gradova Istre s nizom sadržaja.
Katastarska čestica je relativno pravilnog pravokutnog oblika, teren je u blagom padu i djelomično čist a elektroenergetska, vodovodna i elektronička komunikacijska infrastruktura nalazi se uz zemljište.
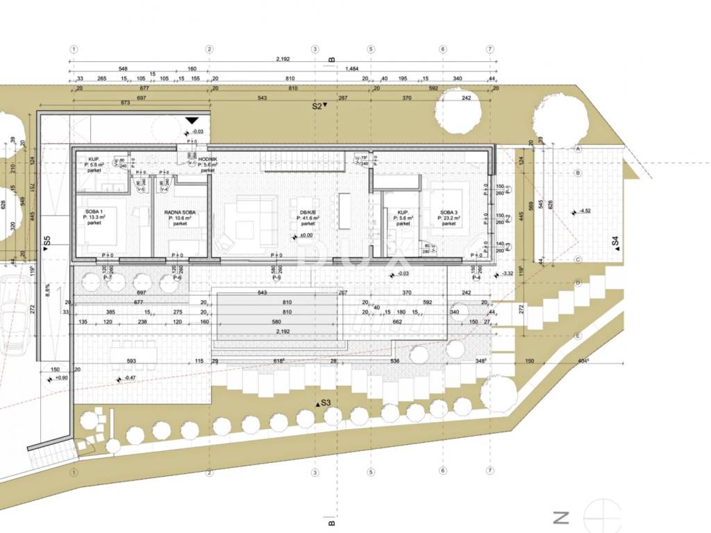
Zemljište ima pravomoćnu građevinsku dozvolu za izgradnju građevine stambene namjene koja svojom arhitekturom ne remeti okoliš već stvara sinergiju prirodnog okruženja i moderne arhitekture i bazena.
Projektirana je kao komforna samostojeća kuća s jednom stambenom jedinicom koja se proteže kroz dvije etaže.

Zbog svoje mikrolokacije, konfiguracije, urednog vlasništva i dokumentacije ovo zemljište pruža izuzetnu priliku za gradnju obiteljskog doma ili kuće za odmor.

Prodavatelj predmetne nekretnine je pravna osoba te je PDV uključen u navedenu cijenu.

Poštovani klijenti, agencijska provizija naplaćuje se u skladu s Općim uvjetima poslovanja:
http://www.dux-nekretnine.hr/opci-uvjeti-poslovanja

ID KOD AGENCIJE: 45797

Iva Zajc
Agent s licencom
Mob: +385 92 235 9472
Tel: +385 91 480 8808
E-mail: iva@dux-istra.com
www.dux-istra.com
Se vuoi saperne di più, puoi parlare con Iva Zajc.
Caratteristiche
Contratto
Vendita
Tipologia
Terreno edificabile
Superficie
718 m²
Informazioni sul prezzo
Prezzo
€ 203.000
Prezzo al m²
283 €/m²
Scopri ogni angolo dell'immobile
+11
Opzioni aggiuntive

Contatta l'inserzionista

Oppure