Terreno edificabile in Vendita

€ 2.029.000
2.984 m²

Nota

Annuncio aggiornato il 04/05/2026
Descrizione

riferimento: DA100067081

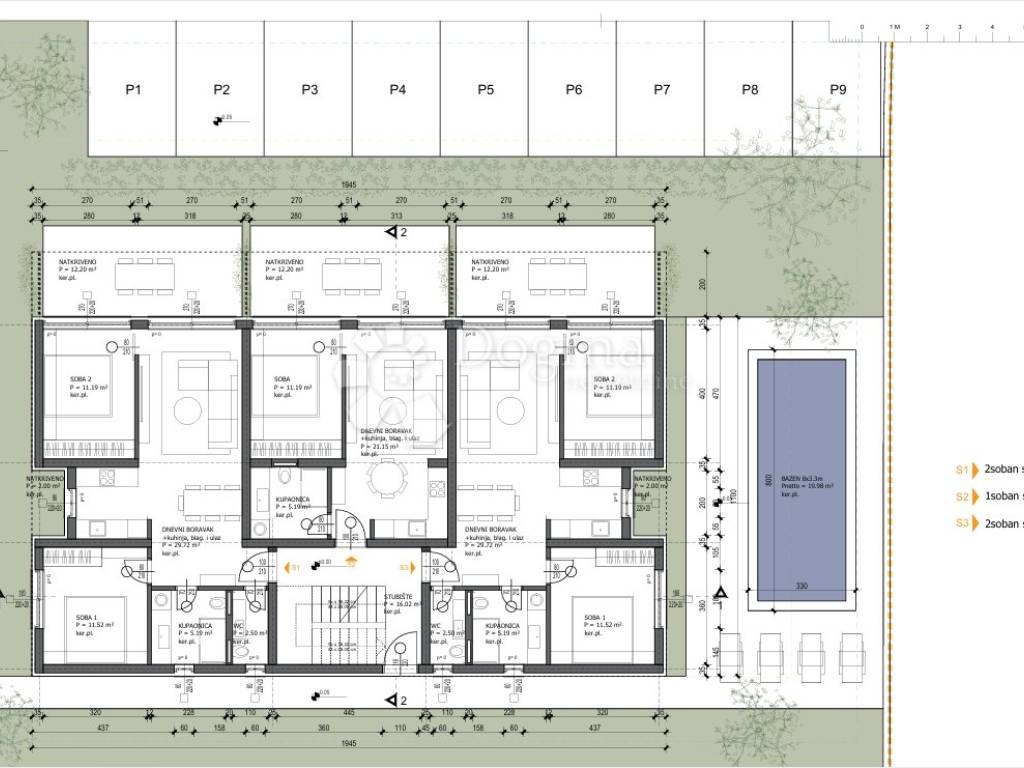
Na prodaju atraktivno građevinsko zemljište ukupne površine 2984m2,
smješteno u Sabunikama, Općina Privlaka,svega 50 m odpoznate pješčane plaže.

Parcela je podjeljena na tri čestice,a za jednu od njih je ishodovana pravomoćna građevinska dozvola
za izgradnju stambene zgrade (Pr+2) s ukupno 9 stambenih jedinica,2B skupine, uz bazen.
Planirana građevinska bruto površina objekta iznosi 629,85m2.

Zgrada je etažne visine prizemlja i 2 kata,visine 8,99m stropne konstrukcije ravnog krova.
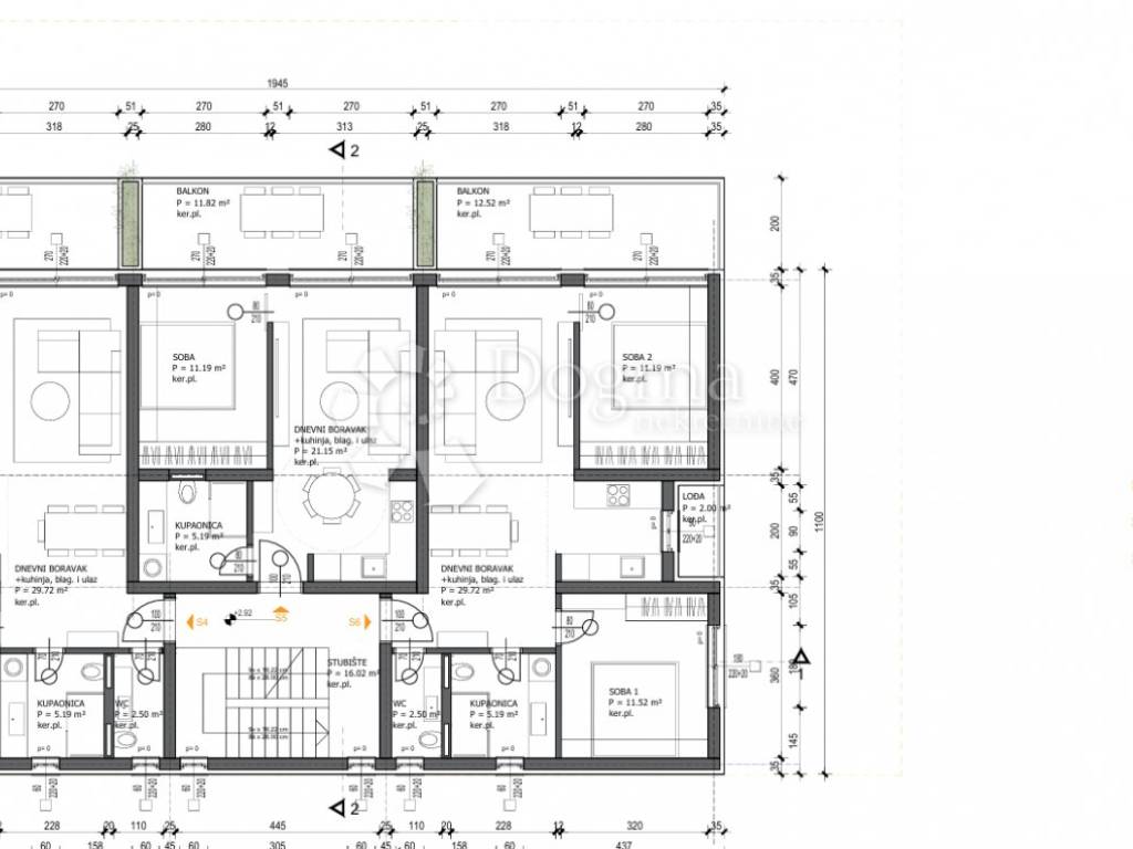
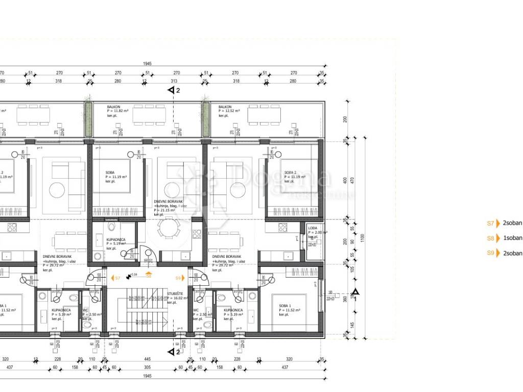
U prizemlju,na 1.katu i na 2.katu se nalaze po 3 stana .
Na svakoj etaži se nalaze po 2 2sobna i jedan 1soban stan u sredini objekta.

Dvosobni stanovi se sastoje od dvije spavaće sobe,kupaonice i wc-a,spojenog dnevnog prostora s kuhinjom
te velikim balkonom na sjeveru i manjom lođom na istočnoj odnosno zapadnoj strani.
Jednosobni stanovi se sastoje od jedne spavaće sobe,kupaonice,spojenog dnevnog prostora s kuhinjom
te velikim balkonom na sjeveru.

Krovna terasa je podjeljena na 3 terase koje pripadaju stanovima 2.kata.

Sva potrebna komunalna infrastruktura nalazi se neposredno uz teren (struja,voda,pristupna cesta),
što omogućuje brz početak gradnje bez dodatnih administrativnih zastoja.

Parcela podjeljena na tri čestice pruža mogučnost fazne realizacije.
Lokacija je jedna od najtraženijih u okolici Nina i Zadra.

Idealna prilika za investitore koji žele brzo pokrenuti projekt
najednoj od najatraktivnijih lokacija zadarskog područja.

Za više informacija:

Marin Peroš
099 677 5850

ID KOD AGENCIJE: DA100067081

Marin Peroš
Asistent u posredovanju
Mob: 099/677-5850
Tel: 023/551-400
E-mail: marin.peros@dogma-nekretnine.com
www.dogma-nekretnine.com
Se vuoi saperne di più, puoi parlare con Marin Peroš.
Caratteristiche
Contratto
Vendita
Tipologia
Terreno edificabile
Superficie
2.984 m²
Altre caratteristiche
  • Allaccio fogne
Informazioni sul prezzo
Prezzo
€ 2.029.000
Prezzo al m²
680 €/m²
Scopri ogni angolo dell'immobile
+22
Opzioni aggiuntive

Contatta l'inserzionista

Oppure