Trilocale Primošten, Capocesto

€ 590.000
3
97 m²
2
2
No
Terrazzo

Nota

Annuncio aggiornato il 25/03/2026
Descrizione

This description has been translated automatically and may not be accurate

riferimento: 463

Evo doslovnog prijevoda oglasa za stan S3 na engleski i njemački jezik:

English
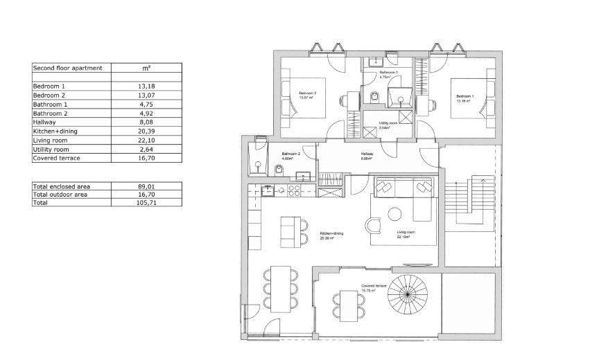
Apartment S3 for sale, located on the second floor of a modern new building near Primošten. The apartment has a total useful area of 97.4 m².

Layout and amenities:

Two bedrooms

Two bathrooms

Hallway

Kitchen and dining room

Living room

Laundry room

Covered terrace

Within the property, one covered parking space and a roof terrace with an area of 64.24 m2 are provided.

Construction and equipment:

ALU joinery with IZO glass, LOW-E coating and argon
Electric ALU shutters with thermal insulation and integrated mosquito nets
Anti-burglary and fire-resistant ALU entrance doors (sound and heat insulated)
Multi-split inverter air conditioners with hidden indoor units
Electric underfloor heating in bathrooms
ETICS facade system with rock wool insulation (10 cm)
LED lighting in all rooms

Preparation for electric charging stations in the garage

This property provides the highest level of luxury and privacy, ideal for personal use or as a top investment in luxury tourist rental.

For more information or to arrange a tour of the property, feel free to contact us.

ID CODE: 463

Iva Kalabrić
Mob: +385995616651
E-mail: iva@materra.estate
www.materra.estate
Caratteristiche
Tipologia
Appartamento
Contratto
Vendita
Piano
2 piano
Piani edificio
2
Ascensore
No
Superficie
97 m²
Locali
3
Camere da letto
2
Bagni
2
Balcone
No
Terrazzo
Box, posti auto
1 posto auto
Riscaldamento
Autonomo, ad aria
Climatizzazione
Autonomo, freddo/caldo
Informazioni sul prezzo
Prezzo
€ 590.000
Prezzo al m²
6.082 €/m²
Efficienza energetica
  • Anno di costruzione

    2026
  • Riscaldamento

    Autonomo, ad aria
  • Climatizzatore

    Autonomo, freddo/caldo
  • Certificazione energetica

    Non classificabile
Scopri ogni angolo dell'immobile
+5
Opzioni aggiuntive

Contatta l'inserzionista

Oppure