Terreno edificabile in Vendita

€ 93.500
978 m²

Nota

Annuncio aggiornato il 11/03/2026
Descrizione

riferimento: 45902

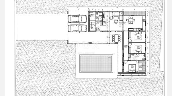
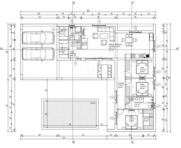
ZADAR, ZEMUNIK G. Građevinsko zemljište s projektom niskoenergetske kuće

Prodaje se građevinsko zemljište površine 978 m u naselju Zemunik Gornji, mirnom i sve traženijem dijelu Zadar. Parcela je pravilnog oblika i odmah uz nju je ucrtan pristupni put, što omogućuje jednostavan ulaz i izlaz te praktičnu organizaciju gradnje.

Na zemljištu je uključen kompletan projekt za montažnu niskoenergetsku prizemnicu površine 155 m. Zahtjev za građevinskom dozvolom uredno je predan u rujnu 2025. godine, što znači da je proces gradnje moguće odmah započeti po dobivanju dozvole. Zemljište je spremno za izgradnju i predstavlja odličnu priliku za kupce koji žele investiciju ili vlastiti dom u mirnom okruženju, a opet u blizini svih sadržaja.

Zemunik Gornji nudi mir i privatnost, a istovremeno brzu povezanost s centrom Zadar, zračnom lukom i glavnim prometnicama, čineći ovu lokaciju idealnom za obiteljsku kuću ili dugoročno ulaganje.

Poštovani klijenti, agencijska provizija se naplaćuje u skladu s Općim uvjetima poslovanja.
https://www.dux-nekretnine.hr/opci-uvjeti-poslovanja

ID KOD AGENCIJE: 45902

Dux Zadar
Mob: +385 99 448 3756
Tel: +385 91 480 8808
E-mail: info@dux-nekretnine.hr
www.dux-dalmacija.com
Caratteristiche
Contratto
Vendita
Tipologia
Terreno edificabile
Superficie
978 m²
Informazioni sul prezzo
Prezzo
€ 93.500
Prezzo al m²
96 €/m²
Scopri ogni angolo dell'immobile
+13
Opzioni aggiuntive

Contatta l'inserzionista

Oppure