Bilocale bana Josipa Jelačića, Samobor

€ 284.550
2
81 m²
1
Balcone

Nota

Annuncio aggiornato il 10/03/2026
Descrizione

riferimento: EUROVILLA-469362

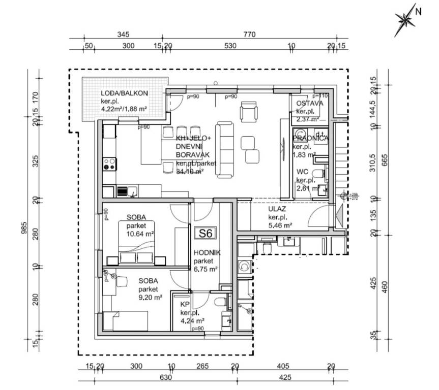
Ovaj projekt predstavlja spoj estetike i funkcionalnosti, pružajući Vam ne samo dom, već i način života koji je u potpunosti prilagođen suvremenim potrebama. Obuhvaća 9 stambenih jedinica čije površine variraju od 45 m2 do 100 m2, svaka s osiguranim garažnim i vanjskim parkirnim mjestima te spremištima. Objekt se prostire na 3 etaže uz podzemnu razinu gdje se nalaze garažna parkirna mjesta i spremišta.STAN S6 81,30m2 - sastoji se od ulaznog dijela, gostinjskog toaleta, open space kuhinje s blagovaonom i dnevnim boravkom s ostavom i izlazom na balkon, odvojenog spavaćeg dijela s dvije spavaće sobe i kupaonice.Stanu dodatno pripada vanjsko i garažno parkirno mjesto i spremište te se dodatno naplaćuje.S obzirom na izraženu estetiku, elegantnu PVC stolariju renomiranog proizvođača Marlex d.o.o. te protuprovalna/protupožarna vrata razine EI30 od strane Kolnoa d.o.o., vaš dom će biti oaza sigurnosti i udobnosti. Podovi su obloženi parketom 1. klase i keramičkim pločicama vrhunskog proizvođača, dok su zidovi sanitarija obloženi keramikom od strane talijanskog proizvođača, stvarajući estetski dojam koji će Vas oduševiti.Ulaskom u ovaj kompleks, ulazite u suvremeni svijet tehnologije i praktičnosti. Svi stanovi su opremljeni dizalicama topline za dodatnu energetsku efikasnost. Optika u zgradi omogućava brzu i stabilnu internet vezu. Sve ovo čini savršeni dom za suvremenu obitelj.Smješten na samom ulazu u Samobor na mirnoj lokaciji u Ulici bana Josipa Jelačića, samo pet minuta od centra grada Samobora i pet minuta od izlaza Bobovica.Ostale informacije na upit.... Više na eurovilla.hr, ID: 469362
Se vuoi saperne di più, puoi parlare con Ante Gregović.
Caratteristiche
Tipologia
Appartamento
Contratto
Vendita
Piano
1
Superficie
81 m²
Locali
2
Camere da letto
2
Balcone
Dettaglio superficie

Abitazione

Piano
1
Superficie
81,3 m²
Coefficiente
100%
Tipo superficie
Principale
Sup. commerciale
81,3 m²
Informazioni sul prezzo
Prezzo
€ 284.550
Prezzo al m²
3.513 €/m²
Efficienza energetica
  • Stato

    Nuovo / In costruzione
  • Certificazione energetica

    Esente
Planimetria
Scopri ogni angolo dell'immobile
+2
Inserzionista
scheda agenzia
Opzioni aggiuntive

Contatta l'inserzionista

Oppure