1/7


Terratetto unifamiliare 127 m², nuova, Selnica
€ 241.300
Annuncio aggiornato il 12/03/2026
Descrizione
riferimento: VZ3507
ID CODE: VZ3507
Simona Vlašić
Asistent u posredovanju
Mob: 098/987-6614
Tel: 042/562-017
E-mail: simona.vlasic@dogma-nekretnine.com
www.dogma-nekretnine.com
Caratteristiche
- Tipologia
- Terratetto unifamiliare
- Contratto
- Vendita
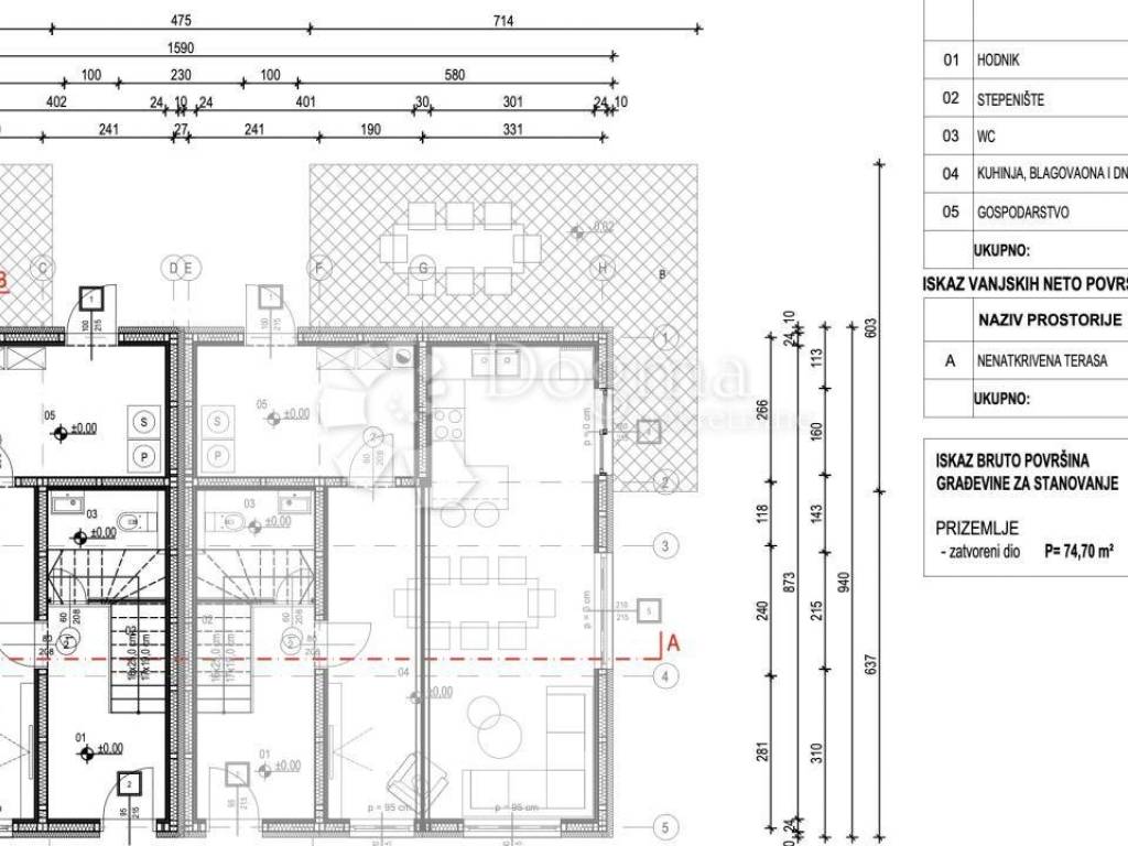
- Superficie
- 127 m²
- Locali
- 4
- Camere da letto
- 3
- Bagni
- 1
- Balcone
- No
- Terrazzo
- Sì
Informazioni sul prezzo
- Prezzo
- € 241.300
- Prezzo al m²
- 1.900 €/m²
Efficienza energetica
Scopri ogni angolo dell'immobile
Opzioni aggiuntive