map icon

Terratetto unifamiliare Vodice, Vodizze

VodizzeVodice
€ 690.000
4
176 m²
3
No
Terrazzo

Nota

Annuncio aggiornato il 11/03/2026
Descrizione

This description has been translated automatically and may not be accurate

riferimento: 15911

Modern detached house with pool in Vodice, new build with 176 m²

A modern detached house with a swimming pool is for sale in Vodice, located in a quiet part of town just one kilometre from the centre. The house is a new build with contemporary architectural design that offers a high level of comfort, a functional layout, and excellent potential both for family living and for tourist rental or investment. The property is situated on a plot of 497 m², while the total usable living area is 176.40 m². The house is currently in an advanced roh-bau stage of construction, allowing the future owner to complete the property according to their own preferences and vision of interior design. The house is designed as a modern family villa with a swimming pool, a large terrace, and a spacious outdoor area for relaxation and social gatherings.

Functional layout on two floors with a spacious terrace

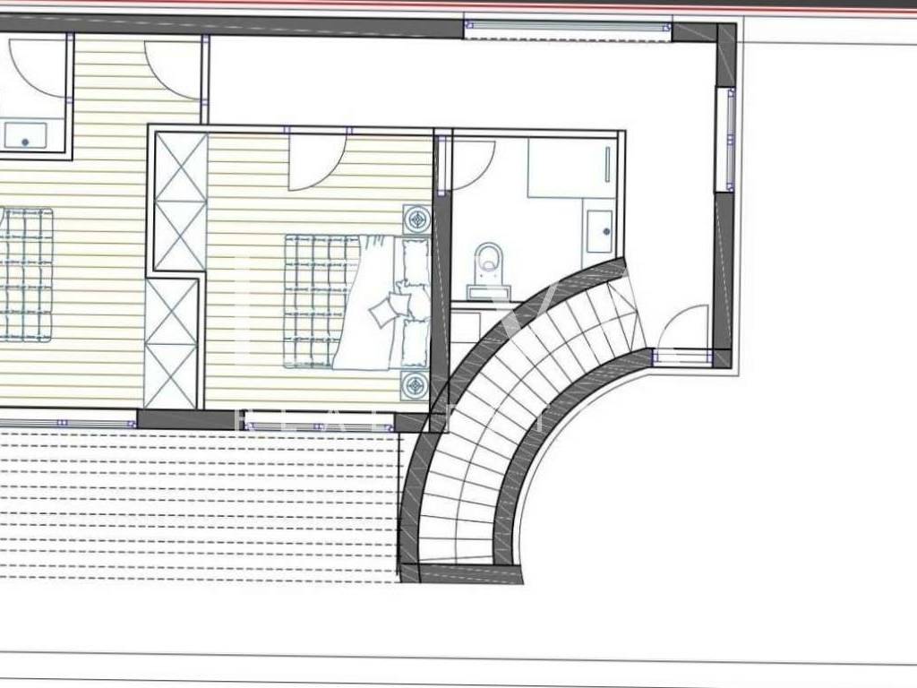
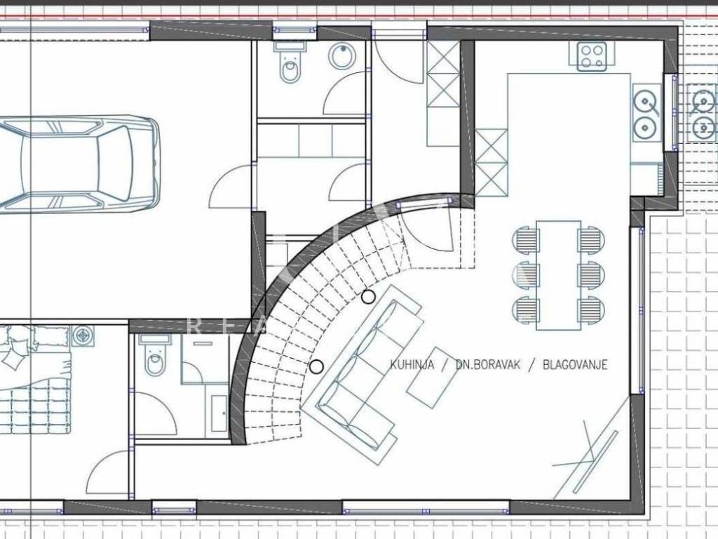
The house is arranged over the ground floor and the first floor, connected by interior stairs placed along a semicircular wall, giving the space a distinctive architectural character. On the ground floor there is an entrance hall of 5 m², a guest toilet (2 m²), and a laundry/storage room (4 m²). Additional practicality is provided by a 35 m² garage with direct access to the house. The central part of the ground floor is a spacious open-plan living area of about 45 m² that combines the kitchen, dining area, and living room. The ground floor also includes one bedroom with its own bathroom, making this level very functional and suitable for guests or elderly family members.
On the first floor there is a hallway leading to two bedrooms, each approximately 15 m², and each with its own bathroom. Both rooms have access to a large terrace of 55 m² that offers many possibilities, including a relaxation area, sun deck, or additional lounge space. On one part of the terrace, installations are planned for a summer kitchen as well as pergolas that allow pleasant outdoor living.

Outdoor area with pool and social space

The outdoor area is designed as a functional and pleasant space for spending time outside. In the yard there is a 19 m² swimming pool next to which a summer kitchen, barbecue, outdoor shower, and a large covered area for socializing and outdoor dining are planned. The property offers four parking spaces in total. Three parking spaces are located in front of the garage, while the fourth is inside the garage. Access to the house is easy, and the location is well connected with the center of Vodice and nearby areas.

Quality equipment and modern technology

The house is designed with a focus on construction quality and energy efficiency. High-quality Salamander PVC windows and doors with six chambers and triple glazing are installed, along with electric roller shutters and mosquito screens. The property has a three-phase electricity connection with a capacity of 13.80 kW. Heating and cooling are solved with modern systems. Water-based underfloor heating is installed in all rooms, including the garage, and is powered by an Azuri heat pump with a capacity of 10 kW. In the living room a ceiling air-conditioning unit Azuri 5 kW is planned, while the bedrooms are equipped with Gree wall air-conditioning units of 2.5 kW. An additional Gree air-conditioning unit of 3.5 kW is installed in the hallway on the first floor. The property also includes a chimney for a wood-burning fireplace and prepared installations for solar panels.

Purchase options

The house is currently in an advanced roh-bau stage of construction and is offered in two purchase options.
The first option refers to the purchase of a fully finished house with an occupancy permit at a price of 690,000 EUR, which corresponds to approximately 3,911 EUR per m².
The second option refers to purchasing the house in its current construction stage at a price of 529,200 EUR, or 3,000 EUR per m². According to estimates, completing the property requires an additional investment of approximately 100,000 EUR, depending on the choice of materials, equipment, and finishing works.
This option gives the buyer the possibility to finish the property according to their own preferences, design style, and level of equipment.

If a lower price for this property is published on another website, the same price will also apply here.

For any additional questions or to arrange a viewing, we remain at your disposal.

In the case of a brokerage agreement with our agency, an agency commission applies.

Contact for this property: Jasmina, +385 95 388 4813

ID CODE: 15911

Jasmina Bilonić
Mob: +385 95 388 4813
E-mail: jasmina@luvarealestates.com
www.luvarealestates.com
Se vuoi saperne di più, puoi parlare con Jasmina Bilonić.
Caratteristiche
Tipologia
Terratetto unifamiliare
Contratto
Vendita
Ascensore
No
Superficie
176 m²
Locali
4
Camere da letto
4
Bagni
3
Balcone
No
Terrazzo
Box, posti auto
1 in box privato/box in garage
Climatizzazione
Autonomo, freddo/caldo
Informazioni sul prezzo
Prezzo
€ 690.000
Prezzo al m²
3.920 €/m²
Efficienza energetica
  • Climatizzatore

    Autonomo, freddo/caldo
  • Certificazione energetica

    Non classificabile
Scopri ogni angolo dell'immobile
+8
Opzioni aggiuntive

Contatta l'inserzionista

Oppure