Terreno edificabile in Vendita

€ 145.000
1.371 m²

Nota

Annuncio aggiornato il 16/03/2026
Descrizione

This description has been translated automatically and may not be accurate

riferimento: 120-122

Riviera di Opatija - terreno attraente con permesso per un progetto residenziale

Kaiser Immobilien presenta un attraente terreno di 1.371 m², situato sulle pendici del Monte Maggiore, sopra Laurana, con una straordinaria vista panoramica sul Golfo del Quarnero, Fiume e Laurana.

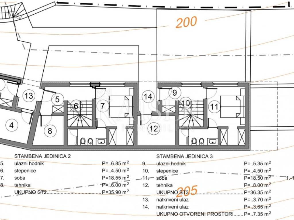
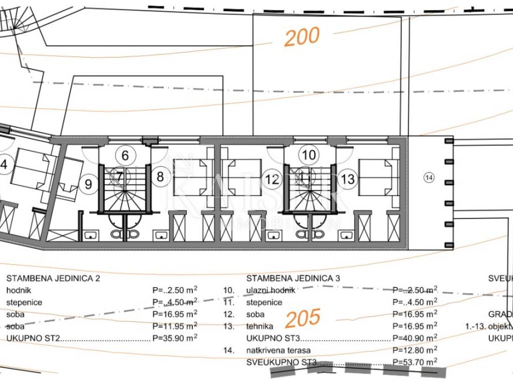
Per il terreno è stata rilasciata la licenza edilizia definitiva e il progetto architettonico di alta qualità prevede tre edifici residenziali in serie: due di 140 m² e uno di 125 m². Grazie alla conformazione del terreno, gli edifici sono sviluppati in verticale e gli spazi abitativi sono disposti su più livelli, con piacevoli spazi esterni che si fondono armoniosamente con l'ambiente naturale.

Il terreno è scosceso e il progetto si adatta architettonicamente alla topografia per garantire la funzionalità degli spazi e una vista spettacolare e senza ostacoli.

La particolarità della proprietà è l'incantevole vista panoramica, letteralmente mozzafiato: l'intero Quarnero come se fosse nel palmo di una mano.

L'accesso è facile, la strada conduce direttamente al terreno e tutti i collegamenti e le infrastrutture necessarie sono disponibili nelle immediate vicinanze.

Questo terreno rappresenta un'opportunità unica per realizzare un lussuoso progetto residenziale multifamiliare in una delle zone più attraenti di Laurana.

Per maggiori informazioni e visite: cell. +385 91 540 4646

Kaiser Immobilien: il vostro partner per immobili di lusso in Croazia.

ID CODE: 120-122

Jirka Nerad
Agent s licencom u posredovanju u prometu nekretnina
Mob: +385911632884, +385995677888
E-mail: jirka@kaiser-immobilien.hr
www.kaiser-immobilien.hr

Silvija Panuccio
Direktor
Mob: +385 91 5404 646
E-mail: silvija@kaiser-immobilien.hr
www.kaiser-immobilien.hr
Caratteristiche
Contratto
Vendita
Tipologia
Terreno edificabile
Superficie
1.371 m²
Informazioni sul prezzo
Prezzo
€ 145.000
Prezzo al m²
106 €/m²
Scopri ogni angolo dell'immobile
+6
Opzioni aggiuntive

Contatta l'inserzionista

Oppure