Bilocale Starotrnjanska ulica, Vrbik - Cvjetno naselje, Zagabria

€ 175.000
2
38 m²
1

Nota

Annuncio aggiornato il 17/03/2026
Descrizione

riferimento: EK-2914185

Prodaje se kompletno adaptiran dvosoban stan (trenutno u fazi kompletne adaptacije) – planirani završetak radova 20.04.2026.

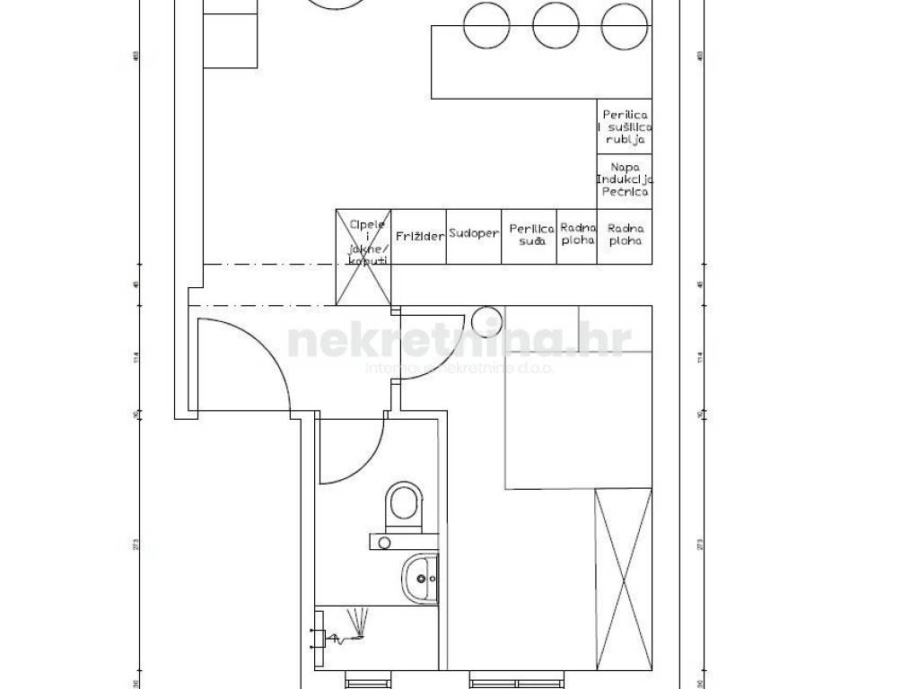
Stan se nalazi u Starotrnjanskoj ulici - Trnje, na 1. katu stambene zgrade bez lifta, ukupne stambene površine 38 m².

Sastoji se od:

ulaznog prostora i hodnika (3,46 m²)
dnevnog boravka s blagovaonicom i kuhinjom (22,37 m²)
spavaće sobe (9,41 m²)
kupaonice s WC-om (3,53 m²)
Stan je u fazi potpune adaptacije, pri čemu se mijenjaju sve instalacije (struja i voda), ugrađuju nova protuprovalna ulazna vrata, PVC stolarija s komarnicima, nova sobna vrata, višeslojni parket sa širokim bijelim lajsnama, nova kupaonica i sanitarije, grijalice te klima uređaj.

Adaptacijom će biti zamijenjen svaki zamjenjivi segment stana, čime kupac dobiva potpuno obnovljen i spreman stan.

Lokacija stana je izvrsna, u neposrednoj blizini svih ključnih sadržaja.

Idejno rješenje uređenja prikazano je na slikama.

Moguć je izbor podnih obloga i sanitarija ukoliko se kupnja realizira tijekom trajanja adaptacije.

Cijena:

175.000 EUR – cijena tijekom adaptacije (vrijedi za gotovinsko plaćanje)
185.000 EUR – cijena nakon završetka radova
Uredno vlasništvo / bez tereta / moguća kupnja putem kredita.

Kupac ne plaća agencijsku proviziju.

Za dodatne informacije i dogovor oko razgledavanja
+385911222121
+38517710177
info@nekretnina.hr
nekretnina.hr
Ulica kralja Zvonimira 52
Se vuoi saperne di più, puoi parlare con Ante Berišić.
Caratteristiche
Tipologia
Appartamento | Intera proprietà | Immobile di lusso
Contratto
Vendita
Piano
1
Piani edificio
2
Superficie
38 m²
Locali
2
Camere da letto
1
Climatizzazione
Autonomo
Dettaglio superficie

Abitazione

Piano
1
Superficie
38,0 m²
Coefficiente
100%
Tipo superficie
Principale
Sup. commerciale
38,0 m²
Informazioni sul prezzo
Prezzo
€ 175.000
Prezzo al m²
4.605 €/m²
Efficienza energetica

Consumo di energia

≥ 250 kWh/m² annoB

Scopri ogni angolo dell'immobile
+5
Opzioni aggiuntive

Contatta l'inserzionista

Oppure