Bilocale Starotrnjanska ulica, Vrbik - Cvjetno naselje, Zagabria

€ 165.000
2
34 m²
2

Nota

Annuncio aggiornato il 17/03/2026
Descrizione

riferimento: EK-2914251

Prodaje se kompletno adaptiran dvosoban stan (trenutno u fazi kompletne adaptacije) – planirani završetak radova 20.04.2026.

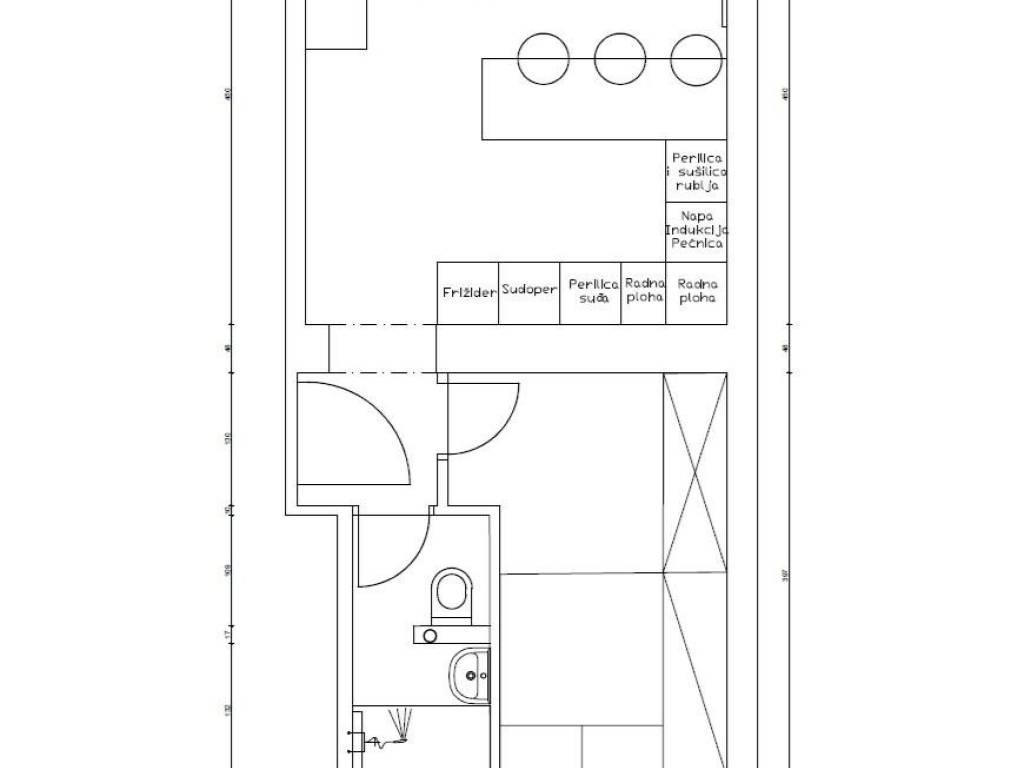
Stan se nalazi u Starotrnjanskoj ulici - Trnje, u prizemlju stambene zgrade, ukupne stambene površine 34 m².

Sastoji se od:
• ulaznog prostora i hodnika (2,29 m²)
• dnevnog boravka s blagovaonicom i kuhinjom (18,59 m²)
• spavaće sobe (9,54 m²)
• kupaonice s WC-om (3,40 m²)

Stan je trenutno u fazi potpune adaptacije, pri čemu se mijenjaju sve instalacije (struja i voda), ugrađuju nova protuprovalna ulazna vrata, PVC stolarija s komarnicima, nova sobna vrata, višeslojni parket sa širokim bijelim lajsnama, nova kupaonica i sanitarije, grijalice te klima uređaj.

Adaptacijom će biti zamijenjen svaki zamjenjivi segment stana, čime kupac dobiva potpuno obnovljen i spreman stan.

Lokacija stana je izvrsna, u neposrednoj blizini svih ključnih sadržaja.

Idejno rješenje uređenja prikazano je na slikama.

Moguć je izbor podnih obloga i sanitarija ukoliko se kupnja realizira tijekom trajanja adaptacije.

Cijena:
• 165.000 EUR – cijena tijekom adaptacije (vrijedi za gotovinsko plaćanje)
• 175.000 EUR – cijena nakon završetka radova

Uredno vlasništvo / bez tereta / moguća kupnja putem kredita.

Kupac ne plaća agencijsku proviziju.

Za više informacija:
+385911222121
+38517701077
Ulica kralja Zvonimira 52
nekretnina.hr
Se vuoi saperne di più, puoi parlare con Ante Berišić.
Caratteristiche
Tipologia
Appartamento | Intera proprietà | Immobile di lusso
Contratto
Vendita
Piano
2
Piani edificio
2
Superficie
34 m²
Locali
2
Camere da letto
1
Dettaglio superficie

Abitazione

Piano
2
Superficie
34,0 m²
Coefficiente
100%
Tipo superficie
Principale
Sup. commerciale
34,0 m²
Informazioni sul prezzo
Prezzo
€ 165.000
Prezzo al m²
4.853 €/m²
Efficienza energetica

Consumo di energia

≥ 250 kWh/m² annoB

Scopri ogni angolo dell'immobile
+5
Opzioni aggiuntive

Contatta l'inserzionista

Oppure