Trilocale Ždrelac, Pašman, Ždrelac, Banj, Pasmano

€ 249.900
3
90 m²
No
Balcone
Terrazzo

Nota

Annuncio aggiornato il 04/05/2026
Descrizione

This description has been translated automatically and may not be accurate

riferimento: 5716

Nuova costruzione isola Pašman - appartament in edificio residenziale

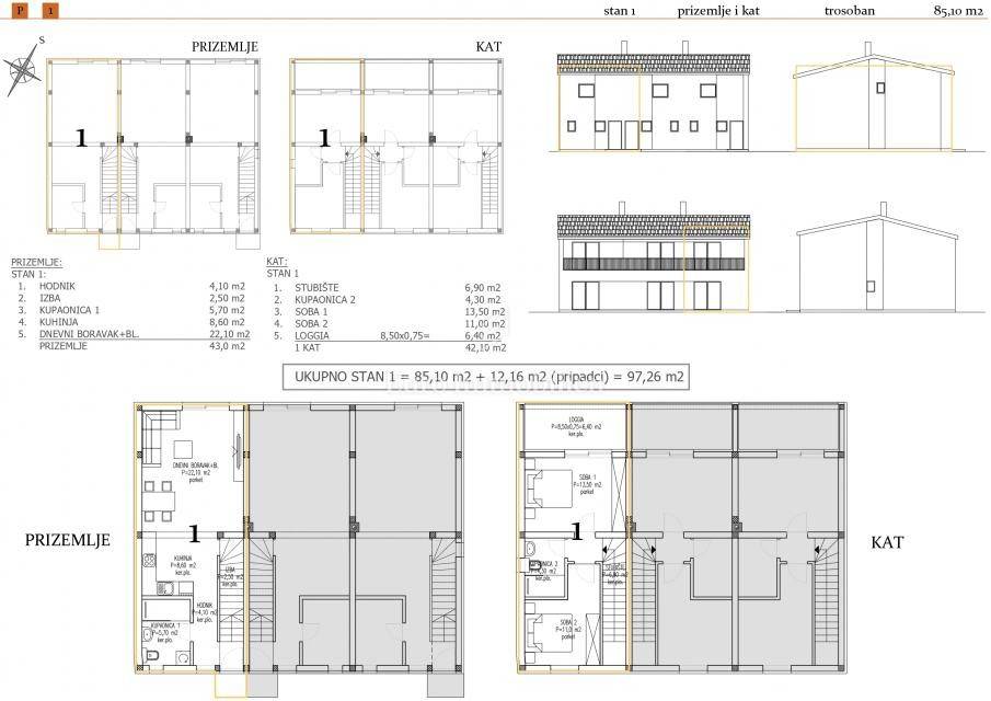
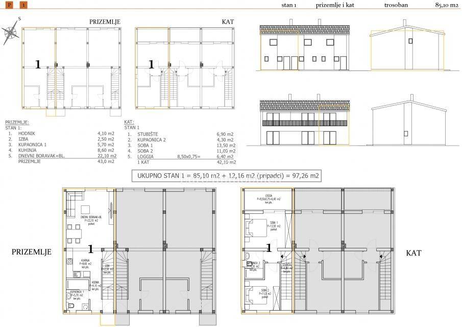
Appartamento in vendita in un edificio residenziale in costruzione sull’isola di Pašman. L’immobile è composto da piano terra e primo piano.

DESCRIZIONE DELL’IMMOBILE:
PIANO TERRA – ingresso, bagno, ampio soggiorno con cucina e zona pranzo, accesso a una spaziosa terrazza (sistemata + predisposta per zona soggiorno esterna), ripostiglio
PRIMO PIANO – due camere da letto (una con accesso alla terrazza), bagno, loggia

Ogni appartamento dispone di due posti auto riservati inclusi nel prezzo.

S2 – 84,20 m² + 6,57 m² (parti accessorie) = 90,77 m²

Nelle vicinanze si trovano una spiaggia sabbiosa e una spiaggia con accesso al mare in cemento. Immobile ideale per le vacanze.

Provizija agencije za kupca iznosi 3% + PDV i plaća se u slučaju kupovine nekretnine kod zaključenja kupoprodajnog Ugovora.

ID CODE: 5716

Euro Immobilien d.o.o.
Mob: 00385 (0)99 444 0500
Tel: +385 51 220 024
E-mail: info@euro-immobilien.hr
www.euro-immobilien.hr
Caratteristiche
Tipologia
Appartamento
Contratto
Vendita
Ascensore
No
Superficie
90 m²
Locali
3
Camere da letto
2
Balcone
Terrazzo
Box, posti auto
2 posto auto
Informazioni sul prezzo
Prezzo
€ 249.900
Prezzo al m²
2.777 €/m²
Efficienza energetica
  • Anno di costruzione

    2024
  • Certificazione energetica

    Non classificabile
Planimetria
Scopri ogni angolo dell'immobile
+39
Opzioni aggiuntive

Contatta l'inserzionista

Oppure