Trilocale Gajac, Novalja, Novaglia

€ 293.985
3
61 m²
1
1
No
Terrazzo

Nota

Annuncio aggiornato il 20/03/2026
Descrizione

This description has been translated automatically and may not be accurate

riferimento: 7580

Nuovo appartamento con vista mare vicino alla spiaggia - isola Pag

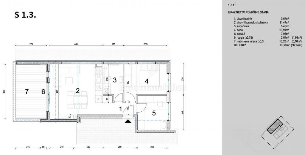
Gajac, Pago – In vendita appartamento con due camere da letto (S.1.3) al piano primo di una nuova costruzione di alta qualità (Z3).

L’immobile (61,99 m²) è composto da ingresso, ampio soggiorno con cucina, bagno, due camere da letto, loggia di 2,64 m² e terrazza coperta di 10,32 m². In tutti gli ambienti è installato il riscaldamento a pavimento, mentre nel soggiorno e nelle camere sono presenti climatizzatori Samsung con sistema di raffrescamento e riscaldamento. La terrazza è dotata di parapetto in vetro.

Caratteristiche principali: infissi in PVC Rehau a 7 camere, con tripla guarnizione e vetrocamera triplo strato; zanzariere alle finestre; porte interne di alta qualità; ceramiche pregiate e parquet nelle camere. Sanitari di prima classe firmati Grohe e Villeroy Boch.

Sono inclusi due posti auto, ciascuno di 12,75 m². È prevista la predisposizione per la ricarica di veicoli elettrici o ibridi.

Provizija agencije za kupca iznosi 3% + PDV i plaća se u slučaju kupovine nekretnine kod zaključenja kupoprodajnog Ugovora.

ID CODE: 7580

Euro Immobilien d.o.o.
Mob: 0994440500
Tel: +385 51 220 024
E-mail: info@euro-immobilien.hr
www.euro-immobilien.hr
Caratteristiche
Tipologia
Appartamento
Contratto
Vendita
Piano
1 piano
Ascensore
No
Superficie
61 m²
Locali
3
Camere da letto
2
Bagni
1
Balcone
No
Terrazzo
Box, posti auto
2 posto auto
Climatizzazione
Autonomo, freddo/caldo
Informazioni sul prezzo
Prezzo
€ 293.985
Prezzo al m²
4.819 €/m²
Efficienza energetica
  • Climatizzatore

    Autonomo, freddo/caldo
  • Certificazione energetica

    Non classificabile
Planimetria
Opzioni aggiuntive

Contatta l'inserzionista

Oppure