Terreno edificabile in Vendita

€ 315.000
834 m²

Nota

Annuncio aggiornato il 21/03/2026
Descrizione

riferimento: 245

Prodaje se zemljište u mjestu Bale, u Istri. Zemljište od 834 m2 sa projektom od 445 m2 i građevinskom dozvolom. Gradilište je već otvoreno i gradi se prekrasna vila sa bazenom. Vodovod je izgrađen i plaćen je priključak vode, a priključak struje je doveden do parcele. Novo  planirana individualna stambena građevina – obiteljska kuća s jednom stambenom jedinicom, imat će tlocrt nepravilnog pravokutnog oblika. Zgrada će etažno imati podrum, prizemlje i kat.
Novo planirana glavna građevina je stambenog tipa, s jednom stambenom jedinicom i vanjskim bazenom, a pomoćna građevina je planirana kao garaža.
 
Razvod instalacija s pripadajućim uređajima na prostoru obuhvata uključuje:

instalacija vodoopskrbe (vodosprema)
odvodnja otpadnih voda (vodoneprospusna sabirna jama)
plinske i strojarske instalacije (dizalice topline)
električne instalacije jake i slabe struje

 
U novo planiranoj građevini nije predviđena upotreba prirodnog plina kao energenta. Vertikalna komunikacija planirana je stubištem i liftom.
 
GBP UKUPNO (glavna stambena zgrada+pomoćna građevina)
419,33+26,31 = 445,64 m2
 
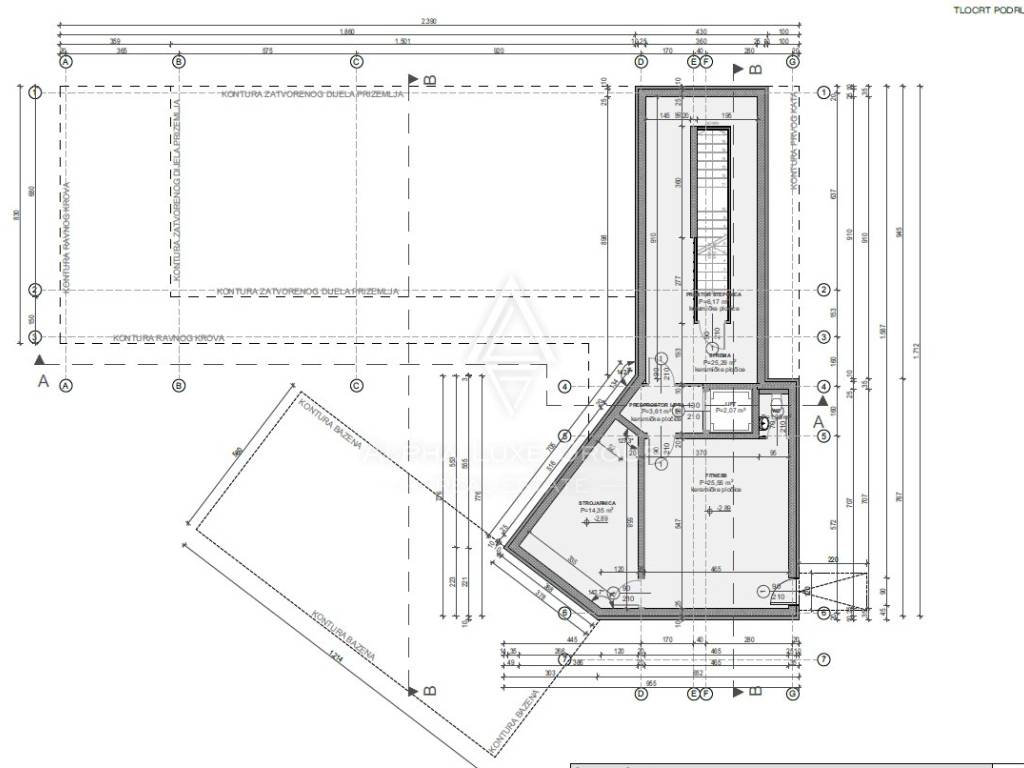
  PODRUM
predprostor lifta           3,61 m2
lift                                    2,07 m2
wc                                    1,28 m2
fitness                             25,55 m2
strojarnica                     14,35 m2
sprema                           25,29 m2
prostor stepenica         6,17 m2


UKUPNO:                         78,32 m2
 
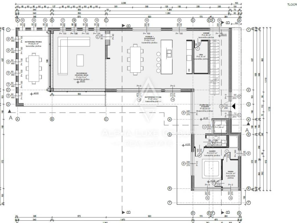
  PRIZEMLJE
sauna              4,91 m2
jacuzzi             15,77 m2
wc                    2,58 m2
lift                    1,96 m2
ulazni hall + stubište          29,85 m2
hodnik              4,50 m2
izba                   5,10 m2
kuhinja + blagovanje          55,30 m2
dnevni boravak                    34,72 m2
natkrivena terasa (37,24*0,5)        18,62 m2
natkrivena terasa dvostruke visine (35,25*0,5)      17,62 m2


 
UKUPNO:         190,93 m2
 
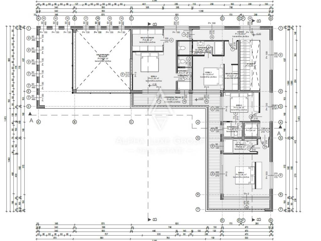
  PRVI KAT
natkrivena terasa   (27,57*0,5)      13,79 m2
soba 1                                                 22,04 m2
kupaonica 1                                       4,48 m2 
soba 2                                                10,44 m2
kupaonica 2                                      2,85 m2
lift                                                      1,96 m2
soba 3                                              17,86 m2
kupaonica 3                                    6,21 m2
soba 4                                              21,46 m2
kupaonica 4                                    4,84 m2
walk in ormar                                 6,81 m2
hodnik                                             18,38 m2


UKUPNO:                                         131,12 m2


SVEUKUPNO:                                  400,37 m2
 
 
 
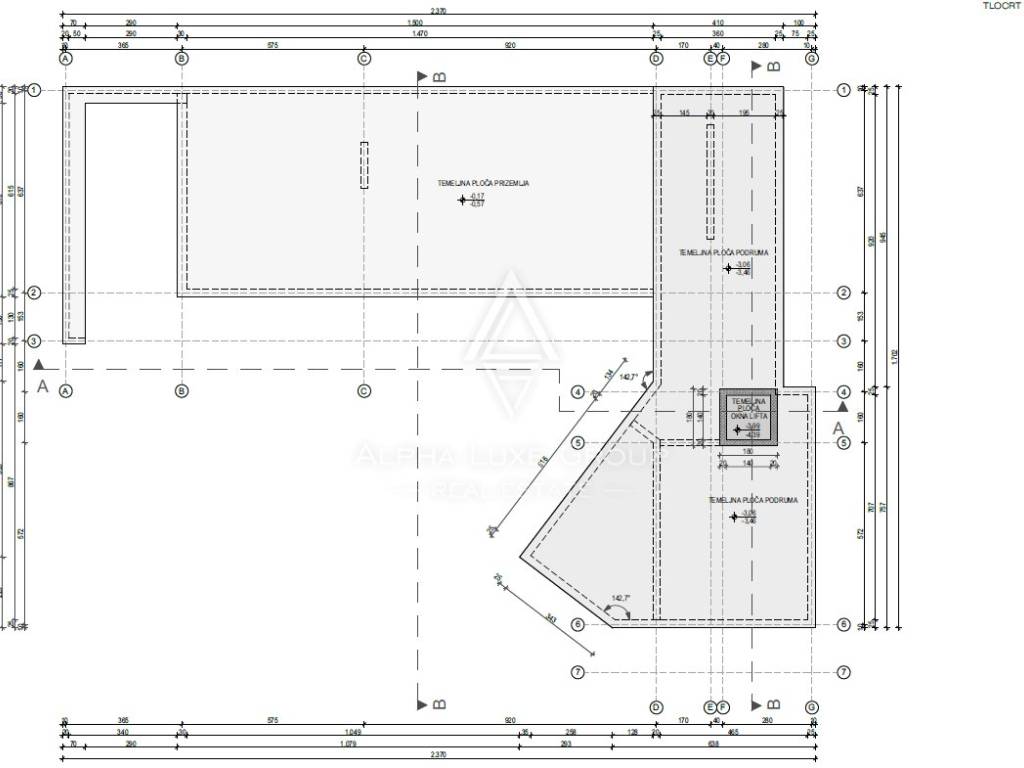
 Tlocrtna projekcija zatvorenih i natkrivenih dijelova glavne stambene zgrade je 269,20 m2, dok je GBP 419,33 m2. GBP pomoćne građevine je 26,31m2.
Stambena građevina smještena je u gradivom dijelu građevne čestice bliže njezinoj istočnoj strani. Ulaz u građevinu osiguran je s istočne strane. Sama građevina organizirana je na način da je ulaz smješten na  prizemlju, a blago kosi teren riješen je kaskadno. Osim ulaznog prostora sa stubištem koje vodi u etažu kata, u prizemlju nalaze se i dnevni boravak, kuhinja s blagovanjem, izba, hodnik, lift, wc, te jacuzzi sa saunom. Na etaži kata nalaze se hodnik, lift, te četiri spavaće sobe sa vlastitim kupaonicama. U sklopu jedne sobe je 'walk in' ormar. Etaža 1.kata ima i natkrivenu terasu te pogled na dnevni boravak u prizemlju kuće. Iz prizemlja se izlazi na terasu s bazenom s jugoistočne strane. Okolnom kultiviranom parteru ozelenjenom autohtonim biljem pristupa se izravno s etaže prizemlja. U podrumu se nalaze wc, fitness i strojarnica, a pristup je liftom, unutarnjim stepenicama, ili rampom s vanjskih stepenica. 
Parkirališna mjesta osigurana su u neposrednoj blizini ulaza u stambenu zgradu, i to jedno vanjsko parkirno mjesto, a jedno u pomoćnoj građevini – garaži za osobne automobile.

Mjesto Golaš u Balama gdje se gradi ova prekrasna vila je udaljeno od Rovinja 9 km. Prva plaža je udaljena 8km. U Balama tijekom cijele godine živi oko 1000 stanovnika. Nalazi se u unutrašnjosti Istre, ali gravitira prema moru. Bale su ruralno mjesto, gdje se unazad par godina izgradilo mnogo luksuznih vila, tako da je i samo mjesto dobilo na cijeni. 200 m od vile je udaljena prekrasna vinarija San Tommaso. Osim luksuznog smještaja i bazena, visokokvalitetnih vina, pršuta i sira, pojedinac može posjetiti i muzej na katu, vratiti se u prošlost i osjetiti samo bilo Istre.
 
Za sva pitanja kontakt telefon 098/915 -5643 (Ivan)
 
LORETA NEKRETNINE
Loreta Usluge Office: Tel: 01/3866-844
Zagrebačka avenija 100a, 10 000 Zagreb
 
Land for sale in Bale , Istria . Land of 834 m2 with a project of 445 m2 and a building permit . The construction site is already open and a beautiful villa with a swimming pool is being built . The connections are all paid for and brought to the land . The newly planned individual residential building – a family house with one residential unit , will have a floor plan of an irregular rectangular shape . The building will have a basement , ground floor and first floor . The newly planned main building is of a residential type , with one residential unit and an outdoor swimming pool , and the auxiliary building is planned as a garage . The distribution of installations with associated devices in the area of coverage includes : • installation of water supply ( water tank ) • wastewater drainage ( watertight collection pit ) • gas and mechanical installations ( heat pumps ) • Electrical installations of high and low current. The use of natural gas as an energy source is not envisaged in the newly planned building . Vertical communication is planned by a staircase and an elevator .
GBP TOTAL ( Main Residential Building+ Auxiliary Building ) 419 . 33+26 . 31 = 445 . 64 m2
CELLAR
elevator entrance hall 3 . 61 m2 lift 2 . 07 m2 toilet 1 . 28 m2 fitness 25 . 55 m2 engine room 14 . 35 m2 Storage 25 . 29 m2 staircase 6 . 17 m2
TOTAL : 78 . 32 m2
GROUND FLOOR
sauna 4 . 91 m2 jacuzzi 15 . 77 m2 toilet 2 . 58 m2 lift 1 . 96 m2 entrance hall + staircase 29 . 85 m2 Hallway 4 . 50 m2 Room 5 . 10 m2 kitchen + dining area 55 . 30 m2 Living room 34 . 72 m2 covered terrace ( 37 . 24 * 0 . 5 ) 18 . 62 m2 covered terrace of double height ( 35 . 25 * 0 . 5 ) 17 . 62 m2
TOTAL : 190 . 93 m2
FIRST FLOOR
covered terrace ( 27 . 57 * 0 . 5 ) 13 . 79 m2 Bedroom 1 22 . 04 m2 Bathroom 1 4 . 48 m2 Bedroom 2 10 . 44 m2 Bathroom 2 2 . 85 m2 lift 1 . 96 m2 Bedroom 3 17 . 86 m2 Bathroom 3 6 . 21 m2 Bedroom 4 21 . 46 m2 Bathroom 4 4 . 84 m2 walk in closet 6 . 81 m2 Hallway 18 . 38 m2
TOTAL : 131 . 12 m2
TOTAL : 400 . 37 m2
The floor plan projection of the closed and covered parts of the main residential building is 269 . 20 m2 , while the GBP is 419 . 33 m2 . The GBP of the auxiliary building is 26 . 31m2 . The residential building is located in the building part of the building plot closer to its eastern side . The entrance to the building is secured from the east side . The building itself is organized in such a way that the entrance is located on the ground floor , and the slightly sloping terrain is solved in a cascade . In addition to the entrance area with a staircase leading to the first floor , on the ground floor there is also a living room , kitchen with dining room , pantry , hallway , elevator , toilet , and jacuzzi with sauna . On the first floor there is a hallway , an elevator , and four bedrooms with private bathrooms . One of the rooms has a walk - in closet . The 1st floor also has a covered terrace and a view of the living room on the ground floor of the house . From the ground floor there is access to a terrace with a swimming pool on the southeast side . The surrounding cultivated parterre greened with indigenous plants is accessed directly from the ground floor . In the basement there is a toilet , fitness and engine room , and access is by elevator , internal stairs , or a ramp from the external stairs . Parking spaces are provided in the immediate vicinity of the entrance to the residential building , one outdoor parking space , and one in the auxiliary building – garage for passenger cars .
The village of Golaš in Bale , where this beautiful villa is being built, is 9 km away from Rovinj . The first beach is 8km away . About 1000 inhabitants live in Bale throughout the year . It is located in the interior of Istria , but gravitates towards the sea . Bale is a rural place , where many luxury villas have been built in the last few years , so the place itself has gained in value . 200 m from the villa is the beautiful San Tommaso winery .   In addition to luxury accommodation and a swimming pool , high -quality wines , prosciutto and cheese , an individual can also visit the museum upstairs , go back in time and feel only the essence of Istria .
For all questions contact phone 098 / 915 - 5643 ( Ivan )
LORETA REAL ESTATE
Loreta Services Office : Tel : 01 / 3866 - 844
Zagrebačka avenija 100a , 10 000 Zagreb
www.loreta-nekretnine.com
 

ID CODE: 245
Caratteristiche
Contratto
Vendita
Tipologia
Terreno edificabile
Superficie
834 m²
Informazioni sul prezzo
Prezzo
€ 315.000
Prezzo al m²
378 €/m²
Scopri ogni angolo dell'immobile
+20
Opzioni aggiuntive

Contatta l'inserzionista

Oppure