Appartamento ottimo stato, piano terra, Jasenice

€ 700.000
5+
130 m²
3
T
Terrazzo
Arredato

Nota

Annuncio aggiornato il 23/03/2026
Descrizione

riferimento: EK-2933827

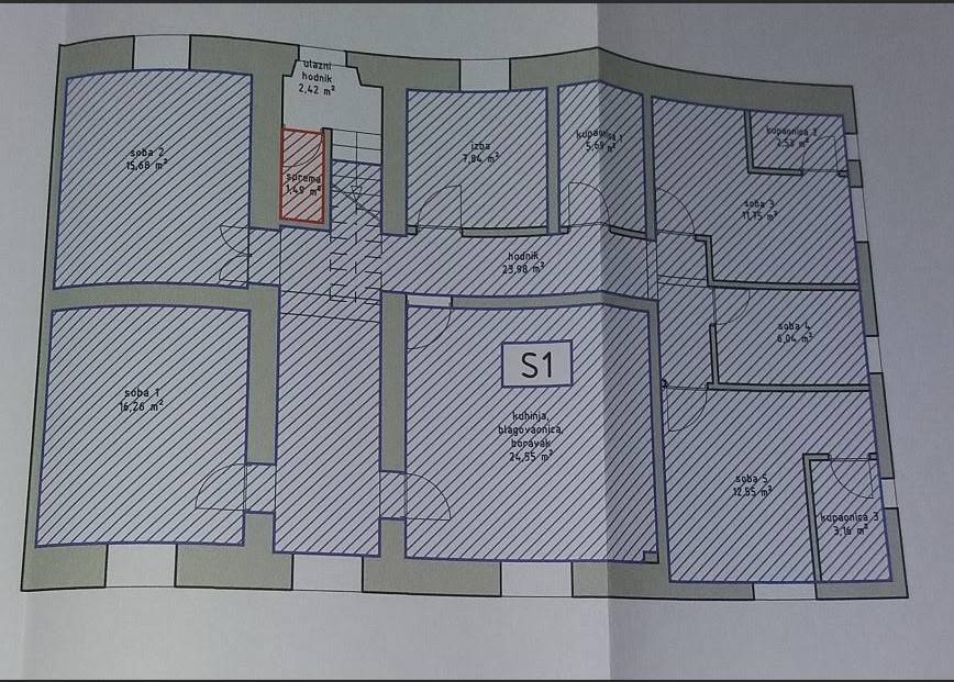
Prodaje se stan na jedinstvenoj lokaciji, 1. red do mora u mjestu Maslenica. Nalazi se u samom centru mjesta, prvi red do plaže, te ima veliku terasu pogodnu za sunčanje. Smješten u uvali u malom mirnom mjestu, pogled na maslenički most, idealno za odmor te za ljubitelje prirode, daleko od gužve. Stan se nalazi u prizemlju zgrade. Stan ima ukupno 130 m2 i sastoji se od hodnika, 3 kupaonice i 6 spavaćih soba od kojih dvije imaju vlastite kupaonice, kuhinje sa blagavaonom i dnevnim boravkom. Stan ima svoj vlastiti ulaz i terasu od 60 m2 na samom moru i maloj plaži. Mirna lokacija, a opet u neposrednoj blizini restorana, kafića, pošte, vrtića, škole, općine, trgovina... Stan se iznajmljuje u turizmu i ima popunjenost 150 noći godišnje. Sva dokumentacija uredna. Više informacija na upit.
Se vuoi saperne di più, puoi parlare con Ivana Pezo Milković.
Caratteristiche
Tipologia
Appartamento | Intera proprietà | Immobile di lusso
Contratto
Vendita
Piano
Piano terra
Piani edificio
2
Superficie
130 m²
Locali
5+
Camere da letto
6
Cucina
Cucina abitabile
Bagni
3
Arredato
Terrazzo
Riscaldamento
Autonomo, alimentazione elettrica
Climatizzazione
Autonomo, freddo/caldo
Vista
Mare
Distanza dal mare
30 m
Altre caratteristiche
  • Esposizione esterna
  • Infissi esterni in doppio vetro / PVC
  • Porta blindata
Dettaglio superficie

Abitazione

Piano
Piano terra
Superficie
130,0 m²
Coefficiente
100%
Tipo superficie
Principale
Sup. commerciale
130,0 m²
Informazioni sul prezzo
Prezzo
€ 700.000
Prezzo al m²
5.385 €/m²
Efficienza energetica

Consumo di energia

≥ 250 kWh/m² annoA

Planimetria
Screenshot_14
Scopri ogni angolo dell'immobile
+9
Inserzionista
agent male

Ivana Pezo Milković

scheda agenzia
Opzioni aggiuntive

Contatta l'inserzionista

Oppure
agent male

Ivana Pezo Milković