Terratetto unifamiliare Šilo, Dobrinj, Dobrinj

€ 1.499.000
5
232 m²
3+
No
Balcone
Terrazzo

Nota

Annuncio aggiornato il 01/04/2026
Descrizione

This description has been translated automatically and may not be accurate

riferimento: 103633

Šilo, una lussuosa villa con un ampio giardino nelle immediate vicinanze del mare!

In vendita tramite la nostra agenzia nel Quarnero, una casa vacanze di grande pregio e costruita con standard elevatissimi, situata nella rinomata e attraente località turistica adriatica dell’isola di Krk, nel paese di Šilo.
Questa elegante proprietà rappresenta una scelta eccellente per locazioni turistiche, vacanze di lusso oppure per un piacevole soggiorno durante tutto l’anno sulla costa adriatica.

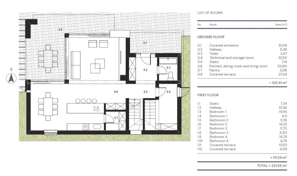
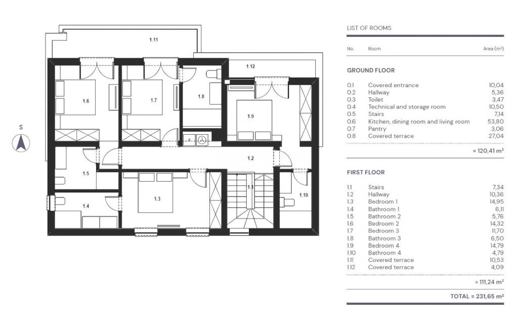
La casa si sviluppa su due livelli con una superficie abitabile complessiva di 232 m² ed è stata progettata e realizzata secondo elevati standard di comfort, qualità e abitabilità contemporanea.
Gli interni comprendono un ampio soggiorno open space collegato alla cucina e alla zona pranzo, quattro comode camere da letto, quattro bagni modernamente arredati, un ulteriore WC di servizio, una terrazza e due balconi. La disposizione degli ambienti è stata studiata con attenzione per garantire massima funzionalità e una piacevole sensazione di spaziosità e luminosità.

Il valore distintivo di questa proprietà risiede nel suo livello premium di realizzazione, poiché è stata progettata e costruita secondo gli standard delle ville a cinque stelle.
La casa viene venduta completamente arredata con mobili di design ed è dotata di tutti gli elettrodomestici necessari e dell’intero inventario, inclusi biancheria da letto, asciugamani, stoviglie e posate, consentendo così al futuro proprietario un ingresso immediato oppure la prosecuzione dell’attività di locazione turistica senza ulteriori investimenti. Per garantire il massimo comfort durante tutto l’anno, l’immobile è inoltre dotato di riscaldamento a pavimento e di un moderno sistema HVAC.

L’area esterna di questa lussuosa proprietà è stata curata con grande attenzione ed è stata concepita come una vera oasi privata di relax e benessere.
Al centro dello spazio esterno si trova una piscina con zona solarium, accompagnata da un’area dedicata al barbecue e al relax all’aperto. Un fascino particolare all’intero ambiente è conferito dall’imponente sistemazione paesaggistica, che comprende ben 24 ulivi di circa 150 anni, oltre 700 piante accuratamente selezionate e giardini mediterranei progettati professionalmente. All’interno della proprietà sono inoltre disponibili posti auto per due veicoli.

Oltre alla posizione eccellente e agli spazi esterni di grande fascino, questa proprietà si distingue ulteriormente per la sua splendida vista aperta sul mare, che completa perfettamente il carattere mediterraneo dell’intera tenuta.

Grande attenzione è stata dedicata anche alla qualità costruttiva, con l’impiego di materiali e dotazioni di altissimo livello. La costruzione è stata eseguita da professionisti esperti sotto costante supervisione tecnica, mentre in tutte le fasi della realizzazione è stata posta particolare attenzione ai dettagli, alle finiture e alla qualità nel lungo termine.

L’immobile è soggetto a IVA, e il proprietario garantisce una documentazione di proprietà in regola e la possibilità di un rapido trasferimento della proprietà all’acquirente.

L’agenzia STAN GRAD Immobilien offre assistenza completa durante l’intero processo di acquisto.
Oltre a una visita professionale dell’immobile, alla sua presentazione dettagliata e alla verifica della situazione giuridica, il nostro team esperto e cordiale è a disposizione dell’acquirente anche per il trasferimento dei diritti di proprietà e per il passaggio delle utenze a suo nome.

ID CODE: 103633

Ivan Radman
Direktor, agent
Mob: +385 91 605 1497
Tel: +385 51 677 809
Fax: +385 51 677 809
E-mail: ivan.radman@stangrad.hr
www.stangrad.hr
Caratteristiche
Tipologia
Terratetto unifamiliare
Contratto
Vendita
Ascensore
No
Superficie
232 m²
Locali
5
Camere da letto
4
Bagni
3+
Balcone
Terrazzo
Box, posti auto
2 posto auto
Informazioni sul prezzo
Prezzo
€ 1.499.000
Prezzo al m²
6.461 €/m²
Efficienza energetica
  • Anno di costruzione

    2025
  • Certificazione energetica

    Non classificabile
Planimetria
Scopri ogni angolo dell'immobile
+14
Opzioni aggiuntive

Contatta l'inserzionista

Oppure