Quadrilocale 1, Jastrebarsko

€ 215.000
4
105 m²
2
S, T, 2
Balcone
Terrazzo

Nota

Annuncio aggiornato il 27/04/2026
Descrizione

riferimento: EK-3056117

PRODAJA STANA – NOVOGRADNJA DESINEC

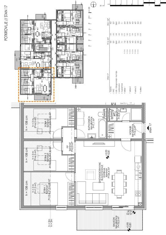
Prodaje se prostrani četverosobni stan S17 na drugom katu moderne stambeno-poslovne zgrade u Desincu, sa liftom, idealan za obitelj ili za sve koji žele mirniji život nadomak Zagreba.

Stan je funkcionalnog rasporeda i sastoji se od:

3 spavaće sobe
prostranog dnevnog boravka s kuhinjom i blagovaonicom
kupaonice
zasebnog WC-a
hodnika
Površine:

stambena površina: 87,10 m²
balkon: 10,50 m²
spremište S10: 4,80 m²
parkirališno mjesto PM2 u dvorištu: 12,50 m²
Stan se prodaje sa svim pripadcima (parkirno mjesto i spremište).

Cijena stana s pripadcima: 215.000 EUR

Dodatno se može kupiti:
garaža u podrumu zgrade – 18.000 EUR

Prednosti zgrade:

novogradnja
mirna lokacija
u prizemlju zgrade nalazi se frizerski salon i teretana otvorena 0–24
idealno za obiteljski život ili investiciju
Desinec – ugodna i mirna lokacija s dobrim prometnim povezivanjem.

Za više informacija i dogovor oko razgledavanja slobodno se javite na navedeni kontakt broj ili putem email-a.
Se vuoi saperne di più, puoi parlare con Kristina Stjepanović.
Caratteristiche
Tipologia
Appartamento | Intera proprietà | Classe immobile signorile
Contratto
Vendita
Piano
Interrato (-1), piano terra, 2
Piani edificio
2
Ascensore
Superficie
105 m²
Locali
4
Camere da letto
3
Cucina
Cucina a vista
Bagni
2
Arredato
No
Balcone
Terrazzo
Box, posti auto
1 posto auto
Riscaldamento
Centralizzato, a radiatori, alimentato a gas
Climatizzazione
Autonomo, freddo/caldo
Vista
Monti
Altre caratteristiche
  • Armadio a muro
  • Esposizione esterna
  • Fibra ottica
  • Impianto di allarme
  • Mansarda
  • Porta blindata
  • Ripostiglio
  • Cancello elettrico
Dettaglio superficie

Abitazione

Piano
2
Superficie
87,0 m²
Coefficiente
100%
Tipo superficie
Principale
Sup. commerciale
87,0 m²

Balcone

Piano
2
Superficie
10,5 m²
Coefficiente
100%
Tipo superficie
Principale
Sup. commerciale
10,5 m²

Altro

Piano
Interrato (-1)
Superficie
4,8 m²
Coefficiente
100%
Tipo superficie
Principale
Sup. commerciale
4,8 m²

Posto auto

Piano
Piano terra
Superficie
12,5 m²
Coefficiente
25%
Tipo superficie
Principale
Sup. commerciale
3,1 m²
Informazioni sul prezzo
Prezzo
€ 215.000
Prezzo al m²
2.048 €/m²
Efficienza energetica

Consumo di energia

≥ 250 kWh/m² annoA

Planimetria
s17 ado
Scopri ogni angolo dell'immobile
+17
Opzioni aggiuntive

Contatta l'inserzionista

Oppure