Terratetto unifamiliare 264 m², nuova, Novaglia

€ 950.000
5
264 m²
3
Terrazzo

Nota

Annuncio aggiornato il 30/10/2025
Descrizione

This description has been translated automatically and may not be accurate

riferimento: 365

U staroj Novalji na otoku Pagu nalazi se ova moderna vila s bazenom koja je upravo izgrađena.

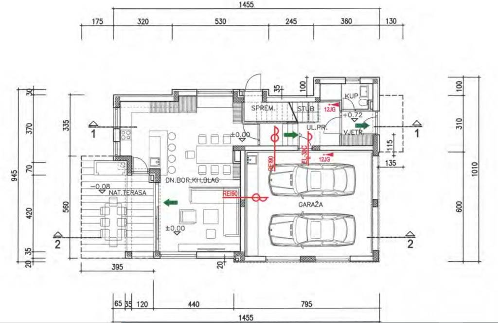
Kuća je ukupne veličine 264.33m2, a nalazi se na parceli od 845m2. Bazen je površine 38.25m2.

Sastoji se od:

Prizemlje – ulazni prostor, veliki dnevni boravak s kuhinjom i blagovaonom, natkrivena i nenatkrivena terasa, garaža za 2 auta, spremište ukupne površine 140,75 m2, stubište za 1 kat.
Kat – gdje se nalaze 4 spavaće sobe, 3 kupaonice, 2 hodnika /garderoba, podest i gospodarski prostor, natkriven balkon i ukupne površine 123,58 m2.


Postavljena je stolarija, žbuka, glazure kao i svi priključci vode i struje. Fasada i unutarnje uređenje odrađeno.
Projektirana da zadovolji energetski certifikat razreda A+. Sa kuće se pruža prekrasan pogled na more koje je udaljeno cca 250 metara od mora.
Nedaleko od kuće nalazi se i glavna gradska plaža “Planjka“.
Se vuoi saperne di più, puoi parlare con Ljiljana Špičić.
Caratteristiche
Tipologia
Terratetto unifamiliare
Contratto
Vendita
Piano
Piano terra
Superficie
264 m²
Locali
5
Camere da letto
4
Bagni
3
Terrazzo
Box, posti auto
1 in box privato/box in garage, 1 posto auto
Altre caratteristiche
  • Piscina
Dettaglio superficie

Abitazione

Piano
Piano terra
Superficie
264,0 m²
Coefficiente
100%
Tipo superficie
Principale
Sup. commerciale
264,0 m²
Informazioni sul prezzo
Prezzo
€ 950.000
Prezzo al m²
3.598 €/m²
Dettaglio dei costi
Spese condominio
Nessuna spesa condominiale
Efficienza energetica
  • Anno di costruzione

    2025
  • Stato

    Nuovo / In costruzione
  • Certificazione energetica

    Non classificabile
Planimetria
Kuca na moru, Prodaja, Novalja, Stara Novalja
Kuca na moru, Prodaja, Novalja, Stara Novalja
Kuca na moru, Prodaja, Novalja, Stara Novalja
Scopri ogni angolo dell'immobile
+4
Opzioni aggiuntive

Contatta l'inserzionista

Oppure