Terratetto unifamiliare Svetvinčenat, Sanvincenti

€ 375.000
3
108 m²
1
No
Terrazzo

Nota

Annuncio aggiornato il 25/02/2026
Descrizione

This description has been translated automatically and may not be accurate

riferimento: 476

Zona di Sanvincenti, casa unifamiliare con piscina in posizione tranquilla

Istria, zona di Sanvincenti

In una posizione tranquilla nei pressi di Sanvincenti è in vendita una moderna casa a un piano con piscina.

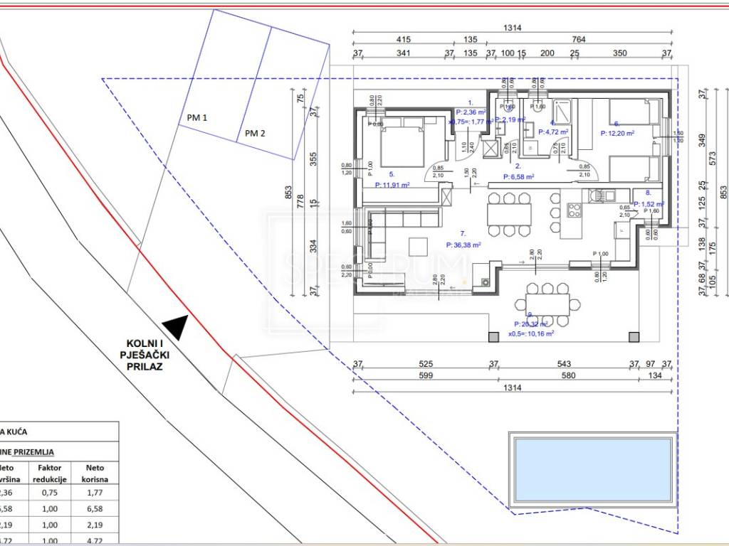
La superficie della casa è di 108,35 m2. La casa è composta da un soggiorno con cucina open space e sala da pranzo, 2 camere da letto, un bagno, un corridoio, un ripostiglio e una terrazza coperta adatta per socializzare e divertirsi. La casa è caratterizzata da ampie pareti vetrate che lasciano entrare molta luce naturale. Il riscaldamento è a pavimento e l'aria condizionata. La casa viene venduta con pavimenti finiti, bagni e lavori di falegnameria installati, ma senza mobili. Per la costruzione vengono utilizzati materiali di qualità e l'acquirente può, in collaborazione con l'investitore, predisporre ceramiche, laminati e altri materiali durante questa fase di costruzione.
La casa si trova su un terreno recintato e paesaggistico di 550 m2. Nel giardino si trova una piscina che, insieme alla zona solarium, rappresenta il luogo ideale per godersi i caldi mesi estivi. Nel cortile c'è anche spazio per 2 posti auto. Il resto del giardino è occupato da un prato ben curato.

La casa si trova in un piccolo e tranquillo villaggio istriano, a pochi minuti di auto da Sanvincenti. Nelle vicinanze della casa si trovano ristoranti, agriturismi, negozi, bar, una scuola, un asilo, una banca, un ufficio postale, l'autostrada, passeggiate, piste ciclabili e vari altri servizi.

Trattandosi di una moderna casa a un piano con piscina, situata in una posizione tranquilla, la casa è ideale per una tranquilla vita familiare, per scopi turistici, ma anche per una pausa dalla folla cittadina.

ID CODE: 476

SPECTRUM REAL ESTATE
Mob: +385 91 955 9811
E-mail: info@spectrum-realestate.eu
www.spectrum-realestate.eu
Caratteristiche
Tipologia
Terratetto unifamiliare
Contratto
Vendita
Ascensore
No
Superficie
108 m²
Locali
3
Camere da letto
2
Bagni
1
Balcone
No
Terrazzo
Box, posti auto
2 posto auto
Riscaldamento
Autonomo, ad aria
Climatizzazione
Autonomo, freddo/caldo
Informazioni sul prezzo
Prezzo
€ 375.000
Prezzo al m²
3.472 €/m²
Efficienza energetica
  • Anno di costruzione

    2025
  • Riscaldamento

    Autonomo, ad aria
  • Climatizzatore

    Autonomo, freddo/caldo
  • Certificazione energetica

    Non classificabile
Scopri ogni angolo dell'immobile
+11
Opzioni aggiuntive

Contatta l'inserzionista

Oppure