Terreno edificabile in Vendita

€ 159.000
604 m²

Nota

Annuncio aggiornato il 18/12/2025
Descrizione

This description has been translated automatically and may not be accurate

riferimento: ZG2070

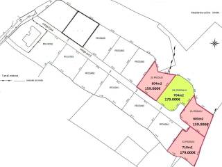
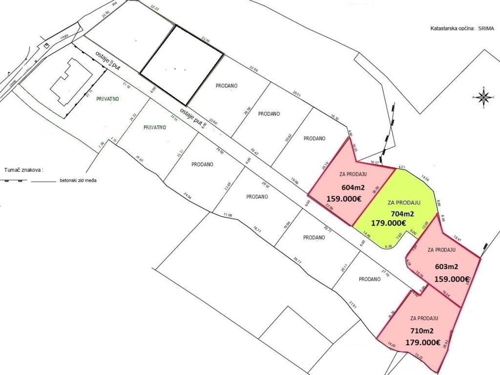
Vodice, SRIMA - terreno edificabile a 550 m dalla spiaggia

Vodice, Srima - si vende un terreno di forma regolare, di dimensioni 604m2. Si trova in una posizione attraente in un ambiente tranquillo, a 550 m dalla spiaggia. Ideale per la costruzione di una casa familiare e/o per investimento. In questa posizione offriamo altri tre terreni:

603 m2 - 159.000€
704 m2 - 179.000€,
710 m2 - 179.000€

Tutti i lotti si trovano nella zona edificabile M con codice 1.4 dove, secondo il piano, è consentita la costruzione di edifici familiari:
- tipo di costruzione: SS,
- Pmin.= 600 m2,
- Pmax.= 1.400 m2,
- Larghezza minima del lotto edificabile: 16 m,
- Almeno il 25% della superficie del lotto edificabile deve essere a verde,
- Emax.= Po+Su+Pr+2,
- Vmax.= 10,0 m,
- min.kig= 0,1, per lotti di dimensioni fino a 1.000 m2,
- la superficie minima delle proiezioni planimetriche degli edifici per lotti di superficie superiore a 1.000 m2 può essere di 100 m2,
- x.kig= 0,3 per lotti di superficie fino a 1.000 m2 ,
- max.kig per lotti di superficie superiore a 1.000 m2 = 300 m2 +0,2 (calcolato solo per la parte della superficie superiore a 1.000 m2 ),
- max.kisN*= 0,6,
- *Nel calcolo del coefficiente di utilizzazione fuori terra (kisN) non si considerano i piani interrati e i seminterrati se utilizzati esclusivamente per il parcheggio dei veicoli all’interno dell’edificio o se tali parti dell’edificio al piano terra sono a verde o hanno una destinazione pubblica,
- PMmin.= 1,5 / 1 SJ.
Caratteristiche
Contratto
Vendita
Tipologia
Terreno edificabile
Superficie
604 m²
Informazioni sul prezzo
Prezzo
€ 159.000
Prezzo al m²
263 €/m²
Scopri ogni angolo dell'immobile
+6
Opzioni aggiuntive

Contatta l'inserzionista

Oppure