Bilocale Firule, Bačvice - Firule, Spalato

€ 1.100/mese
2
82 m²
2

Nota

Annuncio aggiornato il 03/03/2026
Descrizione

riferimento: EUROVILLA-425544

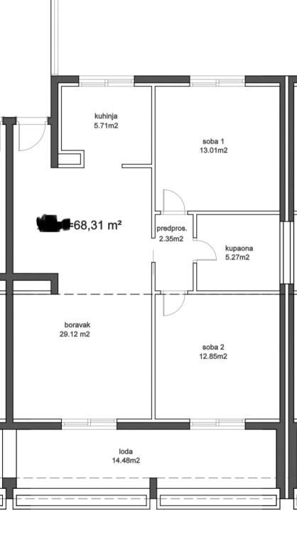
Izniman dvosoban stan na Firulama, Split, dostupan za kratkoročan najam.Ovaj luksuzni stan od 82 m², smješten na drugom katu zgrade s liftom, nudi spoj modernog komfora i vrhunske lokacije. Potpuno uređen i odmah useljiv.Raspored uključuje prostrani dnevni boravak, dvije komforne spavaće sobe, modernu kupaonicu i opremljenu kuhinju. Posebnost je velika loggia, savršena za opuštanje. Sjeverno-južna orijentacija osigurava obilje prirodnog svjetla i izvrsnu prozračnost, stvarajući ugodan i svijetao ambijent.U cijenu stana ulazi parkirno mjesto u garaži zgrade.Firule osiguravaju blizinu plaža, šetnica, restorana i kafića. Centar grada, bolnice i institucije udaljene su nekoliko minuta.Za sve informacije, stojimo Vam uvijek na raspolaganju.... Više na eurovilla.hr, ID: 425544
Se vuoi saperne di più, puoi parlare con Vlatka Tabak.
Caratteristiche
Tipologia
Appartamento
Contratto
Affitto
Piano
2
Superficie
82 m²
Locali
2
Camere da letto
2
Dettaglio superficie

Abitazione

Piano
2
Superficie
82,0 m²
Coefficiente
100%
Tipo superficie
Principale
Sup. commerciale
82,0 m²
Informazioni sul prezzo
Prezzo
€ 1.100/mese
Prezzo al m²
13 €/m²
Dettaglio dei costi
Cauzione
Non indicata
Efficienza energetica
  • Stato

    Nuovo / In costruzione
  • Certificazione energetica

    Esente
Planimetria
Scopri ogni angolo dell'immobile
+15
Opzioni aggiuntive

Contatta l'inserzionista

Oppure