Monolocale Valmade, Šikići - Busoler , Pola

€ 165.000
1
46 m²
1
Balcone

Nota

Annuncio aggiornato il 03/03/2026
Descrizione

riferimento: EUROVILLA-121854

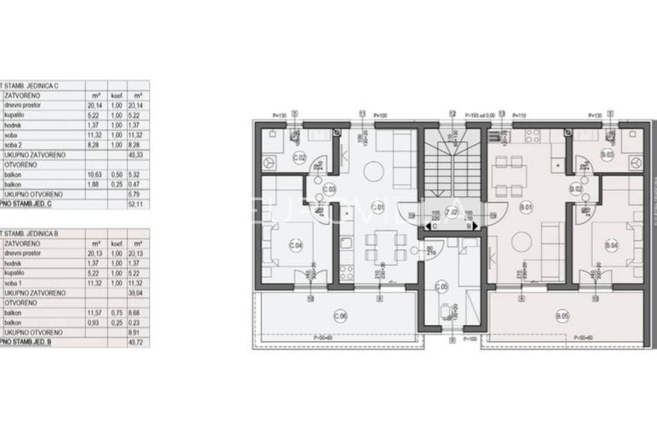
Predstavljamo novu stambenu zgradu od ukupno tri zgrade u nizu. Svaka zgrada se sastoji od četiri stambene jedinice.Riječ je o stanu u zgradi A oznake S2.Stan se sastoji od ulaznog prostora, dnevnog boravka s kuhinjom i blagovaonicom, spavaće sobe, balkona i kupaonice.Stan je opremljen klima uređajima za grijanje i hlađenje, podnim grijanjem, električnim roletama, protuprovalnim vratima, PVC troslojnim staklom te sanitarijama.Uz stan dolazi vanjsko parkirno mjesto i ostava.Predviđen završetak planiran 2026. godine.1/1 VLASNIŠTVO.U cijenu uključen PDV, kupac ne plaća porez na promet nekretnina.Za sva dodatna pitanja, potrebne informacije ili želju za organizacijom termina razgleda stana slobodno nas kontaktirajte!... Više na eurovilla.hr, ID: 121854
Se vuoi saperne di più, puoi parlare con Larissa Rujak.
Caratteristiche
Tipologia
Appartamento
Contratto
Vendita
Piano
1
Superficie
46 m²
Locali
1
Camere da letto
1
Balcone
Dettaglio superficie

Abitazione

Piano
1
Superficie
46,7 m²
Coefficiente
100%
Tipo superficie
Principale
Sup. commerciale
46,7 m²
Informazioni sul prezzo
Prezzo
€ 165.000
Prezzo al m²
3.587 €/m²
Scopri ogni angolo dell'immobile
+5
Inserzionista
scheda agenzia
Opzioni aggiuntive

Contatta l'inserzionista

Oppure