Bilocale primo piano, Traù

€ 270.000
2
72 m²
1
1
No
Terrazzo

Nota

Annuncio aggiornato il 30/03/2026
Descrizione

This description has been translated automatically and may not be accurate

riferimento: ID 195

The building is under construction and the planned completion is at the end of 2026. It is located in an excellent location with an open view of the sea and the distance from the sea and the newly renovated Saldun beach is only 350 m. There are restaurants and markets nearby.

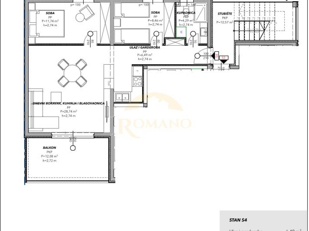
For sale is an apartment on the first floor with a total area of ​​72 m2 (60 m2 apartment and 12 m2 covered terrace).

The apartment consists of a hallway, two bedrooms, a bathroom with a toilet, a living room with a kitchen and a dining room with access to a covered terrace.

The apartment is sold with all installed equipment (doors, sanitary ware, floor coverings, air conditioning...

The apartment has one garage space.
Caratteristiche
Tipologia
Appartamento | Classe immobile media
Contratto
Vendita
Piano
1 piano
Piani edificio
2
Ascensore
No
Superficie
72 m²
Locali
2
Camere da letto
2
Bagni
1
Balcone
No
Terrazzo
Riscaldamento
Autonomo, a radiatori, alimentazione elettrica
Climatizzazione
Autonomo
Vista
Mare
Distanza dal mare
350 m
Informazioni sul prezzo
Prezzo
€ 270.000
Prezzo al m²
3.750 €/m²
Efficienza energetica
  • Anno di costruzione

    2026
  • Riscaldamento

    Autonomo, a radiatori, alimentazione elettrica
  • Climatizzatore

    Autonomo
  • Certificazione energetica

    In attesa di certificazione
Scopri ogni angolo dell'immobile
+4
Opzioni aggiuntive

Contatta l'inserzionista

Oppure